朝阳「柏林郡」售楼处电话-地址-开盘-价格-较新楼盘动态!
扫描到手机,新闻随时看
扫一扫,用手机看文章
更加方便分享给朋友
●北京朝阳「柏林郡」
☎☎售楼处电话:400—100—1299 转接 0008【售楼中心】
★彡提-前-来-电-预-约-登-记—售楼处1v1销售专业讲解〢一对一热情服务〢
★彡温馨提示:网上售楼中心〢欢迎来电咨询〢预约可享内部优惠〢匠心钜制恭迎品鉴〢
近日,4月70城数据已出炉,70城中有67个城市房价呈上涨趋势,只有两城环比下滑。
其中,在4个一线城市新建商品房住宅销售价中,北京上涨0.6%。虽然涨幅不是很大,但是对于3月成功购房的各位小伙伴来说,也算是小小的“赚”了一笔。
为了帮助大家早日买到合适的房子,久居君今天为大家安利,拥有优质地段的朝阳大热楼盘——柏林郡。
1.
6分钟到地铁5号线小红门站
首先来介绍项目优质的地理位置,项目位于北京市朝阳区红坊路6号,紧挨着京沪高速,出门步行6分钟就是地铁站,周围更是多个公交任你选。
项目东侧1.5公里有京沪高速,西侧4公里左右有京台高速,驾车出行畅通无阻。此外,项目到达5号线小红门站仅为600米,步行5-6分钟即可到达,乘坐2站可以换乘5号线、10号线。
并且,项目东北侧距开工建设的17号线朝阳港站仅1.5公里,预计今年年底建成通车,从昌平区未来科技城出发,最终到达亦庄站前区南站,是北京目前最长的一条南北向线路。
除此之外,项目周围还有820、865、990、985、快速直达专线196路等公交供各位小伙伴出行选择。
2.
全维配套
环境
除了地理位置优质,项目的风景也是极好的。500米处有鸿博公园,700米处有国际企业文化园,1公里处可见镇海公园,2公里处还有旺兴湖公园、宣颐公园、碧海公园等等,四季风景优美,小伙伴们的晨跑可以安排起来了。
项目三层生活商圈配套,满足小伙伴的各种吃喝玩乐需求。排名前列层为项目自身的商业配套,5.6万平米江南大厦,目前已经投入使用,各种甜点美食、便利超市、品牌商店任你挑选。
第二层为区域内的商业中心,距项目500米有华创生活广场、永辉生活等,距项目2.5公里有住总万科广场等大型购物商场。
第三层为CBD核心生活区。项目紧邻北京CBD核心区,与国贸、华贸、合生汇三大商圈只有8分钟的车程。并且距离沃尔玛、红星美凯龙、迪卡侬只有5分钟的路程。
医院
项目的医疗资源也很优秀,出门就有卫生服务中心,看病拿药非常方便。
其中,北侧有小红门社区卫生服务中心,东侧1公里左右有厚朴中医诊所,西边5公里处有北京航天总医院,南边7公里左右还有北京同仁医院亦庄分院。
学校
宝爸宝妈有福啦,项目北侧有大地双语幼儿园和小红门中心幼儿园,下楼上班的路上顺便送娃上学,两不耽误。远一点还有人文幼儿园以及满天星幼儿园供宝爸宝妈们选择。
此外,项目西侧1公里处有北京市朝阳实验小学南校,1.5公里处有北京市第八十中学牌坊分校和北京市八十中学睿德分校,满足不同年龄阶段的教学需求。
3.
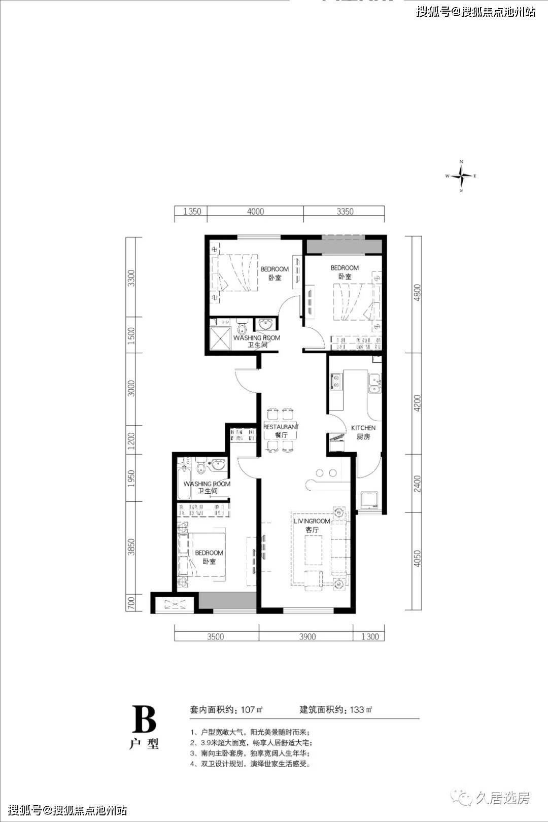
丰富户型
项目户型丰富,有97㎡的两居以及130㎡、150㎡、160㎡的三居,全部房源为精装交付,交房时间为2023年底,产权70年, 得房率为80%左右。
目前房源充足,喜欢的小伙伴可以仔细的挑选看看啦。
97㎡两居,一梯两户,价格为700-750万左右。
130㎡三居,两梯两户,价格为1000万左右。
150㎡三居,两梯两户,价格为1200万左右。
160㎡三居,两梯两户,价格为1200万左右。
●北京朝阳「柏林郡」
☎☎售楼处电话:400—100—1299 转接 0008【售楼中心】
★彡提-前-来-电-预-约-登-记—售楼处1v1销售专业讲解〢一对一热情服务〢
★彡温馨提示:网上售楼中心〢欢迎来电咨询〢预约可享内部优惠〢匠心钜制恭迎品鉴〢
声明:本文由入驻焦点开放平台的作者撰写,除焦点官方账号外,观点仅代表作者本人,不代表焦点立场。
