房山区【天资陸号院】真实报道丨火遍整个楼市丨售楼处中心电话
扫描到手机,新闻随时看
扫一扫,用手机看文章
更加方便分享给朋友
🍀北京房山区【天资陸号院】
☎售楼处电话:4OO—OO—1299 转接 5555【售楼中心】
★提-前-来-电-预-约-登-记—售楼处1v1销售专业讲解〢一对一热情服务〢
★温馨提示:网上售楼中心〢欢迎来电咨询〢预约可享内部优惠〢匠心钜制恭迎品鉴〢
项目简介
天资·陸号院位于房山繁华城市中芯,作为区域在售实景现房,可亲临实地悦揽臻境。亦可亲自考察、体验周边一站式丰盈城市配套,提前感知各项配套为生活带来的诸多便利性,共鉴幸福触手可及.
项目区位图

项目基本情况
楼盘名称:天资六号院
项目特色:低总价、现房、小户型、景观居所
开发商:北京碧桂园房地产开发有限公司
产权年限:70年大产权
物业类别:普通住宅
建筑类型:塔楼
占地面积:10100
建筑面积:29800
容积率:2.95
绿化率:30%
楼栋总数:3栋
总户数:336户
交房标准:毛坯现房(可选择精装包,不捆绑)
产品类型:11-15层高层
户数:336户
单价:3.7万~3.9万
主力户型:
1.建面约53平米,东、西向,一居200万起(可定制精装)
2.建面约65平米,西北、东北向双面采光,一居250万起(可定制精装)
3.建面约72平米,北向,两居277万起(可定制精装)
4.建面约104平米,南向,两居400万起(可定制精装)
5.建面约128平米,东南,西南向双面采光,三居492万起(可定制精装)
6.建面约141平米复式,西北、东北向,双面采光,使用面积约205平米540万起(可定制精装)
7.建面约330平米,西南、东南向,双面采光,使用面积约475平米1270万起(可定制精装)
交房时间:2022年10月31日
物业公司:永信至诚物业服务有限公司
物业费:4.2元/月/㎡
楼层状况:
2/3号楼为50-128㎡一居-三居平层住宅;4号楼为141-330㎡复式住宅,11-15层

在售户型
A1
两室两厅一卫
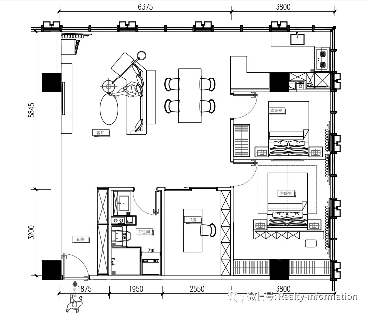
建筑面积约:104㎡
A1户型:建面约104㎡ 户型设计理念诠释
l 阔朗两室布局,南向采光充沛,清风阳光涌入,享阔绰尺度;
l 餐客厨一体人性化设计,国际生活美学,留驻幸福每一桢画面;
l 意境独韵的美好书房,是主人修养身心、怡情养性的阅读主场;
l 明亮主卧,每天在阳光中幸福的苏醒,动静分离 功能分区明确。

A2
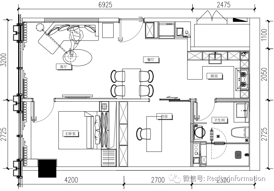
三室两厅一卫
建筑面积约:128㎡
A2户型:建面约128㎡ 户型设计理念诠释
l 舒阔三房设计,户型方正布局,美好阳光双卧空间,幸福生活一步到位;
l 行政酒店级主卧,约3.8米面宽,清晨被阳光叫醒,更是贴心的呵护;
l 优雅人生当自从容,悠然品趣,书香四溢更惬意
l 客餐厨奢侈空间,舒享四季美好乐活,抓住幸福生活每一瞬间。

A3
一室两厅一卫
建筑面积约:53㎡
A3户型:建面约53㎡ 户型设计理念诠释
l 户型方正实用,化繁为简,科学合理,奢阔一房设计;
l 约5.2米大面宽,独特科技创新空间,270°玻璃观景设计尽览风云;
l 百变客厅秒变假日文娱主场,空间随心而异,不再受束缚;
l 客餐厨一体实现生活的较佳秩序,令全屋清爽又通透,小家住出大户型。

A4
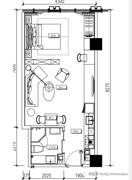
两室两厅一卫
建筑面积约:71㎡
A4户型:建面约71㎡ 户型设计理念诠释
l 方正户型,2房布局,舒适双卧设计,细致护航家人的健康起居;
l 阔绰主卧,约4.2米面宽, 180°玻璃观景设计,更是贴心的呵护;
l 美好书房,既能独享一人闲暇,也能与三五家人好友交流共饮;
l 客厅+餐厅+厨房三个区域相融,可以让家里亮堂N倍以上。

C1
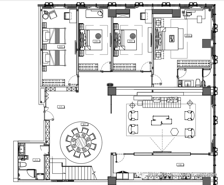
六室三厅四卫
建筑面积约333㎡

C1 一层

C1 跃层

通透舒适的户型设计,4房可变空间灵活改造,盛迎三胎时代;
创新双孩房设计,贴心长辈房设置, 24小时照顾家人的健康起居;
奢适客餐厨咫尺间,增加了家人之间的亲密互动,打破空间的局限性。
阔绰2房设计,行政套卧,独立衣帽间与卫浴室,主人贴心私密空间;
阔绰尺度书房,设置独立卫浴室,揽星光入怀 阳光鲜氧流转于室;
奢适多功能厅,处处都有人性化设计的亮点闪耀,满足家庭各时期居住需求。
C2
五室三厅三卫
建筑面积约141㎡
C2 一层

C2跃层

简约方正的实用户型,装饰随心所欲,绽放一代新贵的风尚生活;
阔绰两室设计,贴心长辈房,悦赏幽静稳重的健康生活格调;
陶冶身心的人性化客餐厨,较大限度延展生活空间,值得一
阔绰3房设计,创新阳光小孩房,经典实用,开辟欢畅空间;
轩敞诗意书房,配置独立卫浴室,书韵弥漫,静心蓄养人生境界;
客厅与餐厅融汇贯通,紧临明净厨房,径直细味生活甜美。

周边配套
【立体交通 】
项目享醇熟立体交通路网,接驳京港澳高速,能够轻松实现高效出行,在短时间内便可以畅达全城,直抵城市各大商圈,织就缤纷生活版图。
四大高速:坐拥京港澳、京雄、京深、京良等四大核心交通动脉;
咫尺地铁:五分钟至地铁房山线篱笆房站;
47条公交路线:长阳碧桂园站,646/896/951/952/971/993等47条公交线,包含多条快速公交,立体畅行路网。


【京南生态氧源】
一心两河五园 涵养森林城市
缤纷四季悄然流转,满眼皆梦幻的自然底色,闪光的绿,沁脾的花香,醉心的色彩……
城市中的人,如果少了自然的点染,或许会缺失许多灵动。天资·陸号院周边生态云集,令家人无限体验大自然的魅力。
一心:雍享房山区文化活动中心,包含图书馆和梦想剧院,还配建有咖啡厅和健身房,以及专门的儿童书房,有书法、绘画、音乐、舞蹈等多种艺术科普厅;
两河:享小清河、哑叭河双水韵风姿绰约;
五园:喇叭河公园、长阳公园、万亩滨河公园、免费的市政公园和城市绿地环伺;绿地率及空气质量领衔北京,休闲度假场所丰盛美好生活。


声明:本文由入驻焦点开放平台的作者撰写,除焦点官方账号外,观点仅代表作者本人,不代表焦点立场。
