杭州<昆仑中心>售楼处电话_售楼处地址_楼盘怎么样—楼盘详解
扫描到手机,新闻随时看
扫一扫,用手机看文章
更加方便分享给朋友
杭州<<昆仑中心>>
☏☎售楼处电话℡:400—763—1618 转接 67600【售楼中心】
✈✈——〢网上售楼中心〢欢迎来电咨询〢——预约可享内部优惠〢
_Vip营销中心_____欢迎来电预约尊享内部折扣_____匠心钜制恭迎品鉴!
Part.1|楼盘概况
杭州昆仑中心位于上城区钱江新城、富春路与望潮路交叉口,共2栋高层塔楼,分为东西AB座,总建筑面积约6万平方米、东面为稠银大厦、南侧为富春路,西面为横店大厦、北侧为钱投近江国际、距离地铁一号线只有200米,已经建好的望江隧道近在咫尺,交通十分便利。
Part.2|基本信息

楼盘名:杭州昆仑中心
楼盘板块:杭州上城区钱江新城板块
开发商:杭州昆仑置业有限公司
类型:酒店式公寓
产权:40年
地铁:1号线4号线近江站200米
总户数:可售40套
户型:大平层公馆(通燃气)
层高:3.9米
价格:暂定
面积:约172-180-439-589方
装修与否:精装交付
交付时间:现房出售
物业:暂定
Part.3|周边配套
【交通配套】:距离地铁1/4号线近江站200米,对接五号线换乘直达萧山奥体和未来科技城,家门口就是公交总部了。
【商业配套】:周边市民中心、杭州国际会议中心、来福士、万象城等城市坐标云集,是杭州豪宅区。
【医疗配套】:望江街道近江西园、耀华社区卫生服务站,中国人民武警部队浙江省边防总队医院
【教育配套】:天艺幼儿园,近江艺术幼儿园,杭州市开元中学,杭州天地实验小学,杭州六季装饰有限公司,浙江外国语学院附属实验学校
项目位于钱江新城核心区,上城区富春路与望潮路交届处。
项目东面为稠银大厦、南侧为富春路,西面为横店大厦、北侧为钱投近江国际。
距离地铁一号线只有200米,已经建好的望江隧道近在咫尺,交通十分便利。
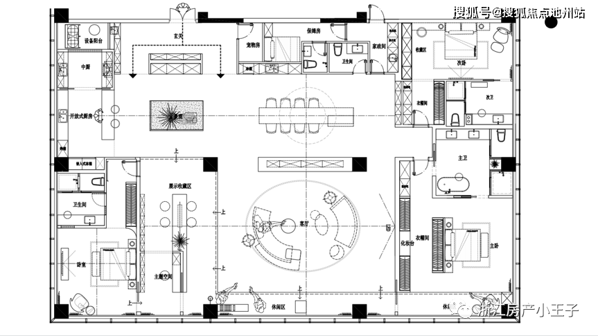
Part.4|户型赏析


杭州<<昆仑中心>>
☏☎售楼处电话℡:400—763—1618 转接 67600【售楼中心】
✈✈——〢网上售楼中心〢欢迎来电咨询〢——预约可享内部优惠〢
_Vip营销中心_____欢迎来电预约尊享内部折扣_____匠心钜制恭迎品鉴!
声明:本文由入驻焦点开放平台的作者撰写,除焦点官方账号外,观点仅代表作者本人,不代表焦点立场。
