2021首页:中顺新澜悦售楼处电话—地址—楼盘怎么样—详解!
扫描到手机,新闻随时看
扫一扫,用手机看文章
更加方便分享给朋友
❀✿临安【中顺·新澜悦】
☏☎售楼处电话℡:400—763—1618 转接 67600【售楼中心】
_Vip营销中心——〢网上售楼中心〢欢迎来电咨询〢——预约可享内部优惠〢

区位图:
概括:中顺新澜悦,坐落于临平新城主轴之上,无缝对接地铁一号线南苑站。银泰城、余之城、欢乐城3大繁华商圈簇拥,约1千米便是4A级景观公园“东湖公园”,公园总用地面积约20多万平方米,其中150亩的森林绿化和150亩的清澈湖水相互辉映宛如临平新城内的“小西湖”极其难得。
楼盘名:中顺·新澜悦
楼盘板块:杭州临平新城核心
开发商:杭州宏晟置业有限公司
类型:酒店式公寓
产权:40年
地铁:地铁1号线南苑站0距离
总户数:约700户
户型:LOFT/双钥匙
层高:4.5米(6梯28户、27楼)
均价:21000/平
面积:45-58㎡
装修与否:精装交付
交付时间:2021年7月30日
物业:滨江物业费6块/平(物业费4.5+能耗1.5)
区域优势:新城的范围大致是东至东湖路、南至沪杭高速公路和星都大道、西北至世纪大道,是杭州接轨上海、融入长三角的门户和枢纽。也是国务院批复杭州 “一主三副” 城市新格局中三大副城之一(临平新城/江南城/下沙城);
它从2001年余杭撤市建区开始便成为了余杭区政治、经济、文化中心,同时由于这里有丰富的生活配套资源和不断提升的商业氛围,所以临平新城又被称作宜居宜商宜业中央活动区,吸引着越来越多的人定居到这里。
相关阅图:约5000平方广场式花园景观,现场也可以感受得到,广场式的花园景观与建筑相映成辉,这在一般的商业类项目中几乎是不存在的。
现房:项目于2019年12月完工验收,2020年7月取得现房销售许可证。产证已经分割到户,入户大堂铺设地暖,是非常稀缺的高端配置。
电梯:配置了6部客厅+1部消防电梯,以17层为分界层,电梯分为低区及高区,高低区的电梯运行速度进行了区分,细节上体现对于用户需求的追求。
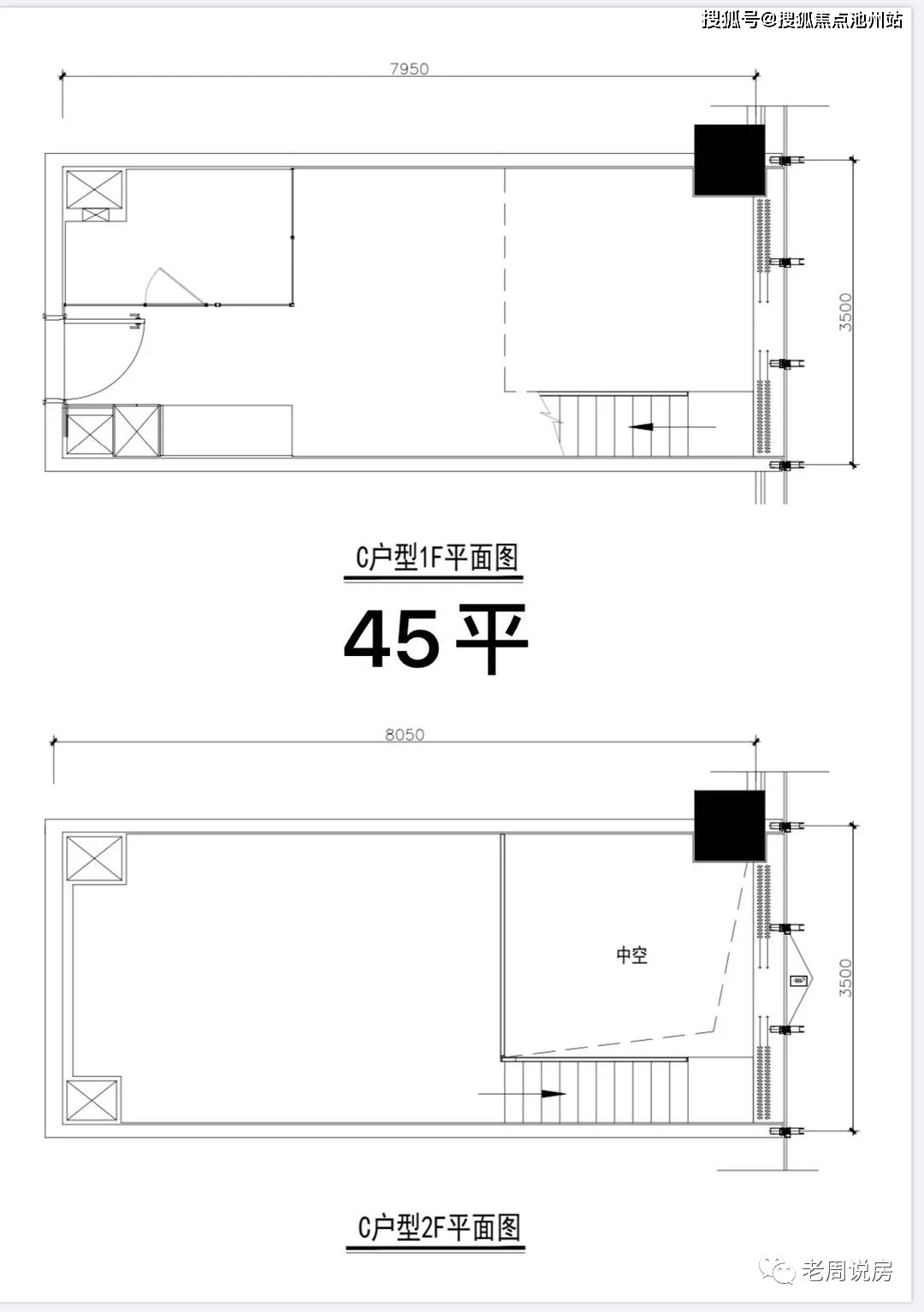
户型:标准层层高均为4.5米,面积段在约43平米至58平米之间,主力面积为约47平米户型,小面积商业项目稀缺,每一户均为大面积落地玻璃,较大程度保证了每套房源的采光。
商业配套:约68万方理想银泰城,约11万方余之城,对望临平大城市综合体——约18万方华元欢乐城,杭州第4座万豪酒店即将入驻临平新城
医疗配套:浙大附属第二医院余杭分院、浙江大学医学院附属妇产科医院、余杭第五人民医院
教育配套:余杭区临平排名前列小学(世纪校区)、天长世纪小学、杭州市余杭区临平排名前列中学、余杭信达外国语学校、北京外国语大学附属杭州橄榄树学校等
交通配套:地铁1号线南苑站0距离,1站之隔余杭高铁站,1站换乘地铁3号线临平站(在建)项目周边三路一环、东湖高架、望梅高架等城市快速路
户型图:
装修示意图:
❀✿临安【中顺·新澜悦】
☏☎售楼处电话℡:400—763—1618 转接 67600【售楼中心】
_Vip营销中心——〢网上售楼中心〢欢迎来电咨询〢——预约可享内部优惠〢
声明:本文由入驻焦点开放平台的作者撰写,除焦点官方账号外,观点仅代表作者本人,不代表焦点立场。
