密云京投发展锦悦售楼处电话【售楼中心】户型如何?为何火了?
扫描到手机,新闻随时看
扫一扫,用手机看文章
更加方便分享给朋友
北京密云京投发展锦悦府
TEL:400 - 100 - 1299 转接 1111【售楼中心】
网上售楼中心——欢迎来电咨询〢——匠心钜制恭迎品鉴!
----------- 欢迎来电预约尊享内部折扣!给您一个满意温馨的家!
北京密云京投发展锦悦府
TEL:400 - 100 - 1299 转接 1111【售楼中心】
回溯到「生活」型态这件事的衍生,从外入内以及独立空间的配置,以「环境」自然共存为导入,利用室内地坪材质延伸及空间量体的转换,重新连结室内外空间定义。
北京密云京投发展锦悦府
TEL:400 - 100 - 1299 转接 1111【售楼中心】
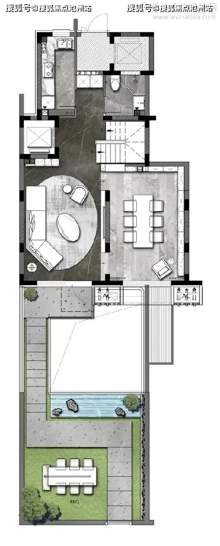
将休闲活动的区域从室内搬到室外,保留大面积的庭园从1楼到地下一层都可以看到庭园的空间运用,让居家生活有更多与自然的连结,在下层的开放空间中,设计概念是由一道连接户外绿地的大面积落地窗开始,在格局规划上,希望能藉此引进室外大片绿意,并将石材主墙与地坪延伸至户外,再利用地坪划开既定的空间定义,区分出一处位于室内外之间的中介空间。让光线与空气透过中介设计的处理,进入室内空间,并过滤光线与流动的空气,让空间宁静而舒适。将延展出介于室内外的共存空间,让居住在其中的人能享受到更多的阳光、空气。而木质地坪温润的质感延续至墙面,透过天光映照着一整片的绿意,感受无压力的朴实因子,在尘嚣及繁忙的都市化生活中,得到一个真正的宁静空间。
北京密云京投发展锦悦府
TEL:400 - 100 - 1299 转接 1111【售楼中心】
立体迭拼的空间,利用垂直动线区分了居住的使用功能,一楼公共领域达到生活互相链接与共同生活的功能,而二楼私密空间安排了独立套房的设定,每个家人都有属于自己的安静的空间。
北京密云京投发展锦悦府
TEL:400 - 100 - 1299 转接 1111【售楼中心】
地下空间的安排增加了入户时的清洁消毒动线,在入口玄关衣帽间的配置里多新增了洗手台的功能,多了一道防疫动线,让回家更安全。
生活型态
剔除繁复的奢华表象後,以材质本身的特性来充填空间,形体组构的方式与手感处理的纹理,交错铺陈,在褪去激情浮夸的都市色彩後,坚定一种沉淀过後的生活态度。
北京密云京投发展锦悦府
TEL:400 - 100 - 1299 转接 1111【售楼中心】
中迭质观 极简艺术
在轴向上将量体延伸立面堆叠。
以温润的木皮质感与特殊涂料做为基底,水磨石与黑色不锈钢的结构特性相互对比,做为空间中垂直水平 的分割模距,以量体形式挤出堆叠并依其形体赋予机能,延续其型态转折至不同空间。
北京密云京投发展锦悦府
TEL:400 - 100 - 1299 转接 1111【售楼中心】
在轴向上发现了一个态度
利用地坪的材质分割的空间中不同的使用机能,利用光源的设定将串连了平面与立面的关系,公领域用黑、灰、白的色彩计划,在不同的材质中看见材料本身的特性与颜色,利用本色的呈现,让视觉能够达到放松的效果,在居家生活的空间不受到太多刺激的观觉感受。
而卧室空间则是另用了更多的木饰面,让空间整体更为温暖,木地板的铺设方式更放大了空间的视觉感,每个卧室都有独立的卫浴设备,让各自拥有更多自我空间。
北京密云京投发展锦悦府
TEL:400 - 100 - 1299 转接 1111【售楼中心】
1.下叠平面
北京密云京投发展锦悦府
TEL:400 - 100 - 1299 转接 1111【售楼中心】
下叠1层
北京密云京投发展锦悦府
TEL:400 - 100 - 1299 转接 1111【售楼中心】
下叠2层
北京密云京投发展锦悦府
TEL:400 - 100 - 1299 转接 1111【售楼中心】
下叠地下1层
北京密云京投发展锦悦府
TEL:400 - 100 - 1299 转接 1111【售楼中心】
下叠地下2层
下叠地下3层
2.中叠平面
北京密云京投发展锦悦府
TEL:400 - 100 - 1299 转接 1111【售楼中心】
中叠3层
北京密云京投发展锦悦府
TEL:400 - 100 - 1299 转接 1111【售楼中心】
中叠4层
建案名称:京投发展 锦悦府 叠拼样板间
主持设计师: 近境制作 设计总监 唐忠汉
房屋格局:叠拼
建案地点:北京
空间坪数:中叠165.9平米 下叠206.6平米
北京密云京投发展锦悦府
TEL:400 - 100 - 1299 转接 1111【售楼中心】
网上售楼中心——欢迎来电咨询〢——匠心钜制恭迎品鉴!
----------- 欢迎来电预约尊享内部折扣!给您一个满意温馨的家!
声明:本文由入驻焦点开放平台的作者撰写,除焦点官方账号外,观点仅代表作者本人,不代表焦点立场。
