远洋财富中心售楼处电话—售楼处地址—售楼中心24小时电话详解
扫描到手机,新闻随时看
扫一扫,用手机看文章
更加方便分享给朋友
➢➢上海<<远洋财富中心>>
☏☎售楼处电话℡TEL:400—763—1618 转接 67600【售楼中心】
✈✈——〢网上售楼中心〢欢迎来电咨询〢——预约可享内部优惠〢
_Vip营销中心_____欢迎来电预约尊享内部折扣_____匠心钜制恭迎品鉴!
全新【在售】楼盘信息_楼盘房价_户型详情_交房时间_周边配套_楼盘点评!
自贸区,上海引以为傲的城市名片,不到上海1/50面积的土地,却能创造出上海1/4的GDP:这里500强云集,是大金融、大贸易、大数据、大艺术的天下,这里也是国际资本与国际智慧的名利场与竞技场。在自贸区占据一席之地,不仅是一流企业的志向,也是每个精明投资者的志向。
从2013年开区至今,自贸区房价与房租均是水涨船高,如果说其他城市的市场存在炒作与泡沫,自贸区房价特别是纯粹市场竞争的产物:一边是500强于一线企业聚集逾60000人精英人群,而且,随着自贸区功能的扩展与未来城市产业的升级,人口规模还会继续扩大,另一边,却是先天规划导致的缺口:自贸区内仅有15%的商业用地,且区域内可售产品均为整层或整栋销售!供应不足的巨大的缺口,导致该区域精装两房的房租已经破10000元大关,且租赁市场每年以10%左右的速度持续增长;而整栋整层的销售方式,则是将普通置业者阻挡在门槛之外。
而今,自贸区的大门再次打开,位于自贸区与森兰国际社区交汇处的“壹品星汇”,针对自贸与森兰的高端客户,打造精装修的优质小户型,50平“2+1”、70 平“3+1”两大主力户型可供选择,总价仅228万起,入主自贸区,正当时。
置业小户型,除了地段,还有哪些要素值得关注?
随着房产进入门槛的提高,现在的投资者,越来越青睐总价低、首付低的“双低”小户型,我们要说的是,市场有风险,“双低”特别不是考量投资价值的特别要素。
我们都知道,房地产,最重要的是地段,无论是工作出行,还是生活配套,好的地段或者是有前瞻规划优势的物业就是更具有竞争力。
目前外高桥自贸区内普遍供应较少,办公物业供应主要以二手房为主,且房龄普遍较长,设施略显老旧、选择余地较小。相对而言,远洋财富中心作为目前外高桥自贸区核心区域内,少有在售的一手办公楼项目在产品规上具有一定优势。
壹品星汇项目共由一栋主楼和两栋副楼组成,三栋楼采用凹字型布局,从风水学来讲是聚财的象征着财源滚滚,生意兴隆。其中2号楼为主楼,办公面积1.3万方共12层层高4.2米半层500平米起售,远洋地产自贸区里自己的办公总部也会设立在这栋里面。一号楼和三号楼 办公面积是1.5和1.6万方共9层层高4.4米可以做loft,可谓是双倍得房率。面积43-90㎡各266套办公主力户型为60㎡。
另外,该项目43㎡的小面积物业产品不但降低了投资门槛,还在企业注册资质问题方面兼顾了注册、办公、投资等多重利好。同时,项目拥有彰显企业实力与气派的双层大堂,交付使用时是区内少有标准较高的写字楼。
交通配套:地铁6号线外高桥保税区南站、公交815路、181路、浦东17路等。
七隧两环三轨三干道,纵享立体交通,出行更多选择
七隧: 外环、翔殷路、军工路、崇启隧桥;还有三条越江隧道还在规划中航津路隧道、洲海路隧道及东靖路隧道。
两环: 中环+外环
三轨: 6号线+12号线+10号线延伸段(自新江湾城至外高桥)约25分钟到达五角场商圈。
三干道: 张杨路、杨高路和五洲大道。
已建成的轨道交通6号线外高桥保税区南站距离本项目只需步行10分钟,25分钟可达世纪大道,形成了30分钟内通达市中心的成熟交通配套,还有规划中的20号线和21号线。建成后,到人民广场仅需30分钟。
周边配套:肯德基、麦当劳、全家便利店、快客便利店、中国工商银行、华夏银行、浦发银行、农业银行、渣打银行、国泰世华银行 、加枫路邮政支局等
项目位于外高桥自贸区5号门旁,隔路对望海关大楼。是区域内少有的在售小面积双层LOFT办公项目,层高4.4米。本案临近6号线与中环线,交通便利。
◆
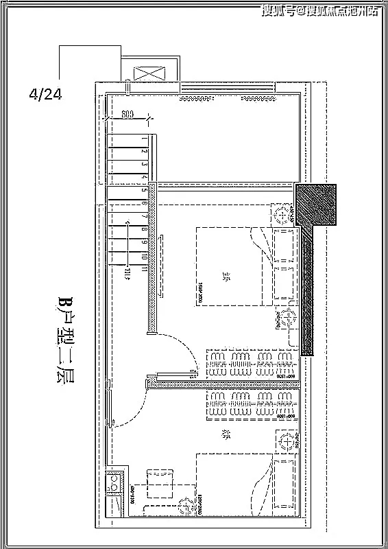
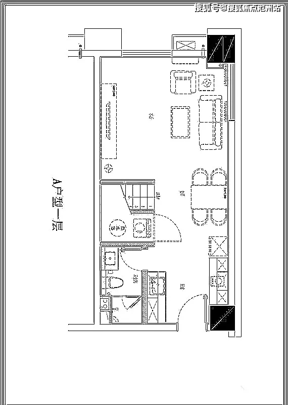
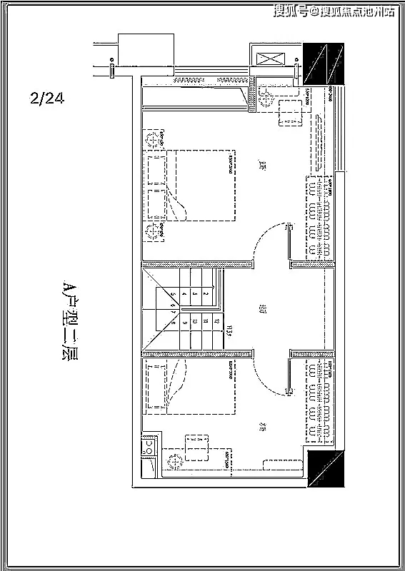
型图房鉴赏↓↓↓
➢➢上海<<远洋财富中心>>
☏☎售楼处电话℡TEL:400—763—1618 转接 67600【售楼中心】
✈✈——〢网上售楼中心〢欢迎来电咨询〢——预约可享内部优惠〢
_Vip营销中心_____欢迎来电预约尊享内部折扣_____匠心钜制恭迎品鉴!
全新【在售】楼盘信息_楼盘房价_户型详情_交房时间_周边配套_楼盘点评!
声明:本文由入驻焦点开放平台的作者撰写,除焦点官方账号外,观点仅代表作者本人,不代表焦点立场。
