北京顺义区“新世界◆丽樽”售楼处电话——璀璨来袭!
扫描到手机,新闻随时看
扫一扫,用手机看文章
更加方便分享给朋友
➢➢北京顺义区【新世界◆丽樽】
☎☎售楼处电话℡:400-100-1299 转接 4444【售楼中心】
★★网上售楼中心——欢迎来电预约尊享一对一销售专业讲解服务!
_Vip营销中心_____欢迎来电预约尊享内部折扣_____匠心钜制恭迎品鉴!
全新【在售】楼盘信息_楼盘房价_户型详情_交房时间_周边配套_楼盘点评!
编辑
—— 新世界丽樽 ——
未来科学城高端别墅社区
(项目效果图)
编辑
【项目名称】新世界丽樽
【售楼处接待时间】早9:00-晚18:00
【产品动态】
1.独栋楼王
房本面积:953平米
花园面积:378㎡
赠送车库:3个
报价:5200万
团购优惠:4428万
2.独栋楼王毛坯房
房本面积894平米
花园面积276平米
赠送车库:3个
报价:4650万
团购优惠价:3959万
3.联排、类独栋售罄。
—— 新世界丽樽 | 效果图 ——
编辑
—— 项目名称 | 楼座图 ——
编辑
—— 新世界丽樽 | 基本信息 ——
01.项目介绍:
新世界丽樽位于御河板块,一路高速通达亚运村、国贸、机场等区域,尊享 别墅区与未来科技城双重生活配套,项目西侧毗邻京承高速科技城出口(8号出口),周边顺于路、高白路、天北路。
新世界丽樽周边自然环境优越,处于温榆河绿色生态走廊与唐土新河景观带交汇处,西南侧 温榆河生态走廊,西侧为未来科技城340万平米滨水森林公园,西入口横跨温榆河支流唐土新河的沿河景观公园,项目北侧为顺于路绿色生态走廊,项目南侧为北京 的春晖园温泉度假区。项目的地块可以说是自然环境优美的天生别墅用地。
新世界丽樽占地11万平米,总建筑面积17.5万平米,整体容积率为东区0.59西区0.67,为法式宫廷风格产品。项目一期规划81栋576-960平米别墅,地上三层,地下二层。外立面为经典法式建筑,采用石材,立面精工雕铸,尽显奢华美感。项目在整体景观设计上采用的是法式经典宫廷园林风格,轴对称美学典范。社区配有 景观公园,又名枫丹白露,双重入口、三重水景,是法式经典宫廷园林,轴对称的美学典范。社区内景观以点状分布为主,注重全方位的立体层次分布,合理利用自然地形打造下沉庭院,铺地落差,跌水等景观, 度,从容有致,体现了尊重自然不只是改造自然的思想,使得人造环境与自然环境相得益彰,相互辉印。
新世界丽樽内部配置私属会所和法式风情商街,满足商务及生活需求。丽樽由新世界中国地产开发,新世界集团自1994年进入北京顺义,伴随着丽斯、丽高等豪宅的筑就,历经20余年的不懈耕耘,见证了北京别墅市场的发展过程,是中央别墅区重要的开发商品牌之一。
编辑
02.项目位置:北京顺义区高丽营镇高白路与顺于路交叉口西南(京承高速8出口路东100米)。
03.售楼处位置:导航新世界丽樽售楼处。
04.物业类型:70年
05.产权年限:17.5万平米
06.占地面积:11万平米
07.建筑面积:东区0.59,西区0.67
08.容积率:35%
09.绿化率:0.59
10.总楼栋数:308栋(东区独栋81栋,西区227栋其中类独栋64套、联排163套)
11.在售楼栋:6栋独栋
12.总户数:308户
13.在售户数:6栋独栋(毛坯)
14.在售户型:独栋
15.得房率:120%
16.车位配比:2~3个车位(地下停车库)
17.梯户配置:一梯一户
18.交房标准:毛坯
19.交房时间:2017年7月31日
20.供暖方式:燃气壁挂炉
21.开发商:北京新世界华美房地产开发有限公司
22.物业公司及物业费:新世界物业9.3元/平米
23.拿地时间:2010年
24.首期开盘时间:2016年3月23日
25.最近加推开盘:无
26.楼间距:15米
编辑
—— 新世界丽樽 | 周边配套 ——
01.交通方式:自驾京承高速8出口路东200米
02.商业配套:荣祥广场、欧陆广场、中粮祥云小镇、新世界百货
03.教育配套:高丽营第三幼儿园、温莎双语幼儿园,京西学校、未来城排名前列小学、北京顺义国际学校ISB、英国德威国际学校、新英才、海嘉、鼎石、未来城国际学校等
04.医疗配套:三甲医院地坛医院,二甲医院中国医科大学顺义医院、中国人民解放军六六0五五医院和首都机场医院等
05.休闲娱乐:拉菲特国际高尔夫俱乐部,彼岸青滩高尔夫俱乐部,金色河畔高尔夫,新铂骊马术俱乐部、天星调良等国际马术俱乐部等
06.自然环境:温榆河、方氏渠、未来科技城滨河公园、观承滨河公园、郊野公园、罗马湖、奥林匹克水上公园
07.自建配套:私属高端会所,法式风情商业街。
编辑
—— 新世界丽樽 | 核心卖点 ——
一.区域价值:
御河板块。城北中央别墅区,中国别墅群落开山之地。历经20余载的精心发展,中央别墅区划分整齐、合理,建筑形态规划先进,成为引领中国未来10年别墅发展的价值标杆。在这一区域之中,御河板块作为全新崛起的后起之秀,身负着未来高端豪宅开发建设的重任。
二.配套价值:
商业:荣祥广场、欧陆广场、中粮祥云小镇、新世界百货
医疗:三甲医院地坛医院,二甲医院中国医科大学顺义医院、中国人民解放军六六0五五医院和首都机场医院等;
公园:温榆河、方氏渠、未来科技城滨河公园、观承滨河公园、郊野公园、罗马湖、奥林匹克水上公园
教育:高丽营第三幼儿园、温莎双语幼儿园,京西学校、未来城排名前列小学、北京顺义国际学校ISB、英国德威国际学校、未来城国际学校等
休闲:拉菲特国际高尔夫俱乐部,彼岸青滩高尔夫俱乐部,金色河畔高尔夫,新铂骊马术俱乐部、天星调良等国际马术俱乐部等
三.产品价值:一墅三院,漫看四时盛景。新世界·丽樽新法式别墅,拥有420—805平的舒宜空间尺度,在别墅前庭后院的经典规划上,加入了下沉式庭院设计,形成突破常规的一墅三院庭园规制,将庭院生活的尊崇与私享优质相融。院落阔绰的空间打造,为居者谨献一场气势恢宏的叠进式景观盛宴。
四.投资价值:丰富的配套,8分钟步行生活圈,地铁、公园、学校、商业,拥有房屋升值的一切必要条件。
—— 新世界丽樽 | 区位图 ——
编辑
—— 新世界丽樽 | 配套图 ——
编辑
未来科学城:与项目一路之隔的未来进驻至少24家央企,打造国际一流国际科技创新平台,307万平方米。公共服务配套:体育中心、图书馆科技展览馆、剧院等。不是每个小区都有,一定是在高端别墅群附近才有。保利大都会。
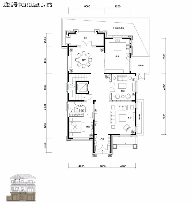
——新世界丽樽 | 户型图 ——
编辑
编辑
编辑
编辑
编辑
—— 新世界丽樽 | 样板间图 ——
编辑
编辑
编辑
编辑
编辑
—— 新世界丽樽 | 效果图 ——
编辑
编辑
➢➢北京顺义区【新世界◆丽樽】
☎☎售楼处电话℡:400-100-1299 转接 4444【售楼中心】
★★网上售楼中心——欢迎来电预约尊享一对一销售专业讲解服务!
_Vip营销中心_____欢迎来电预约尊享内部折扣_____匠心钜制恭迎品鉴!
声明:本文由入驻焦点开放平台的作者撰写,除焦点官方账号外,观点仅代表作者本人,不代表焦点立场。
