【华樾国际领尚】售楼处电话|详情【售楼中心】图文解析
扫描到手机,新闻随时看
扫一扫,用手机看文章
更加方便分享给朋友
北京朝阳区【华樾国际领尚】
售楼处热线:400-100-1299转接7777【售楼中心】
网上售楼中心〢欢迎来电咨询〢安全通话隐藏真实号码〢预约可享内部优惠〢
郑重承诺:开发商售楼处直销,绝不收取任何费用,中介勿扰!
樾国际领尚是限竞房,5年限售,但价格的诱惑总是最直接的。
项目信息整个小区的容积率是2.8,一共8栋楼,没有东西向。
外立面采用玻璃、真石漆、铝板。
社区园林设计了很多生活场景,露天放映厅、共享健身房、社区归家大堂、跑道…都是年轻人喜欢的。
119平和145平做到了2梯2户,层高2.95米。
101平的1梯2户,层高也是2.95米。
其他是2梯4户或者2梯3户,层高2.9米。
社区一共738户,全部为产业化精装。
社区里有4%的企业自持,在8号楼里。

开发商:北京市金旭开泰房地产开发有限公司
楼盘位置:工朝阳一东坝]金盏国际合作服务区
物业公司 :旭辉永升物业
物业费:待定
房屋类型:小高层、高层_
产权年限 :70年
建筑风格 :现代风格
拿地时间 :2020年12月14日
交房时间 :预计2024年上半年
供暖方式 :集中供暖
总层高:10~26层
单层高:2.9米
梯户比:2梯2户、2梯4户
楼栋数:8栋
绿化率:30%
首付比例:首套40%、二套80%
总户数:738户
单价 :7.1万起总价区间 :580-1100万
占地面积 :27000平
建筑面积 :74000平
面积区间 :75-144平
得房率:加赠送75%-80%
户型介绍
户型做到了刚需、刚改、改善全面积段覆盖。
刚需:75平2居。
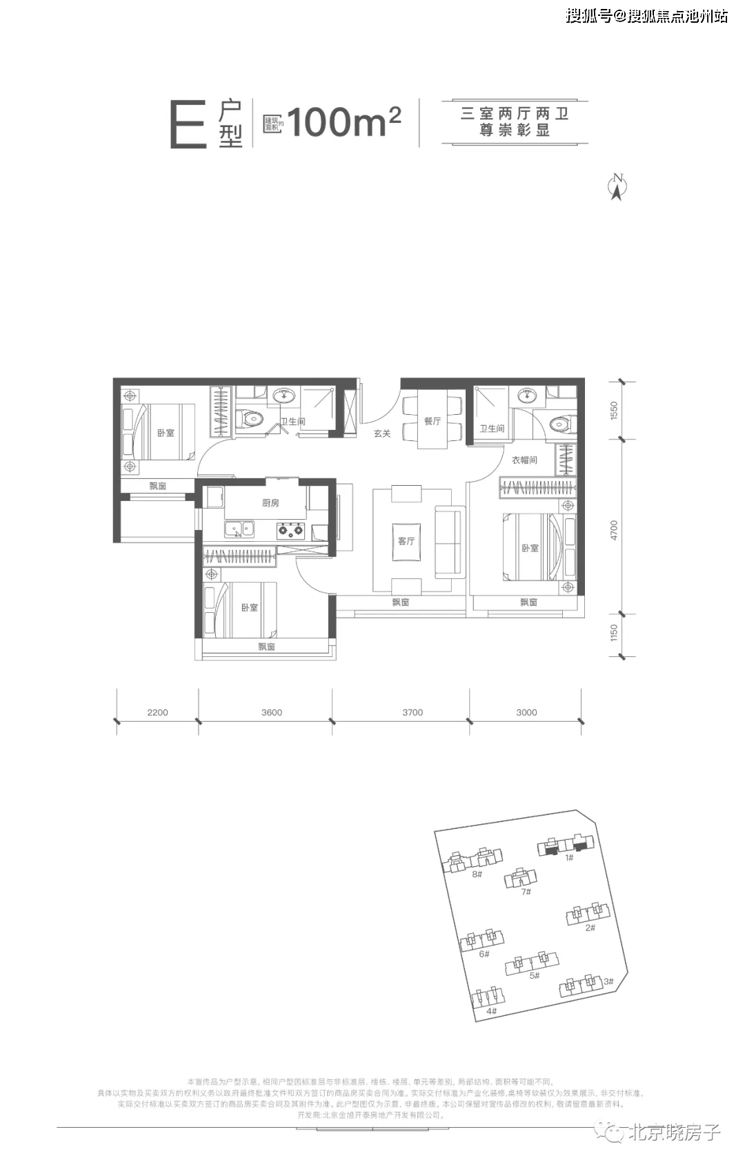
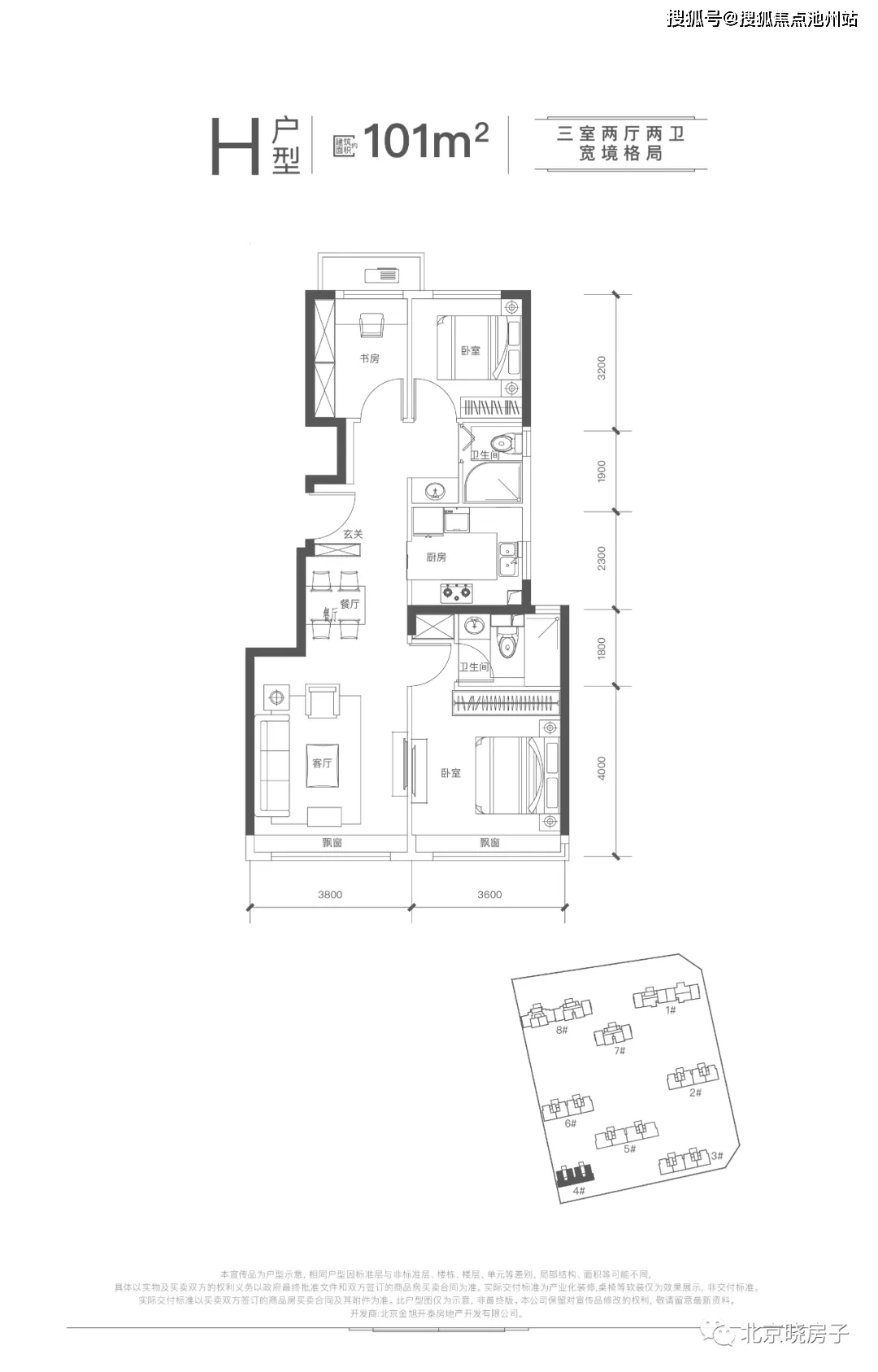
刚改:96平、98平、100平、101平3居。
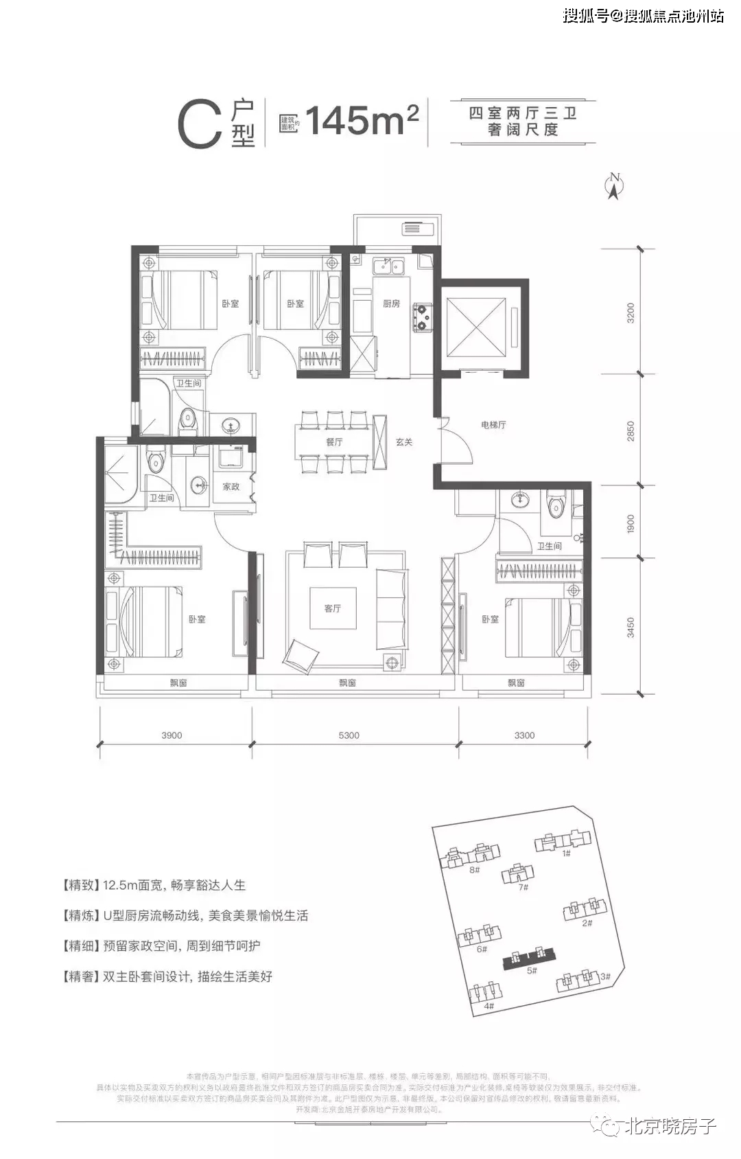
改善:119平3居,145平4居。
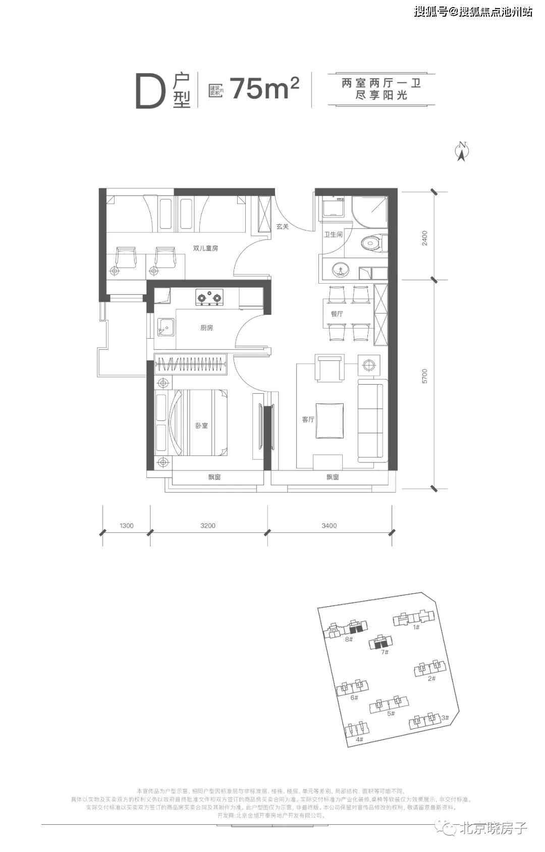
75平2居,标准的纯南两居户型,没什么新奇的。
整体看上去更“矮胖”一些,南向整体面宽达到了7.9米。北侧的次卧敢放两张床,足见面宽够大,但也因此让北侧小卧室的采光问题更严重了一些。
96/98平3居1卫,边户的主力户型。
南北通透,客厅的窗户朝西。南向两个卧室。
厨餐客一体式设计,超强的窗墙比,让客厅十分敞亮。
同时南向两个卧室均带飘窗。
还是要提窗墙比的这个概念,不管南北向,开窗面积都提升了,采光和视野很不错。
100平3居2卫。纯南3居。
这是个南向优质采光户型,南向的4个飘窗也增加了性价比。
优质的南向面宽,但南北并不通透。
十字动线,浪费了不少过道面积。
入户正对餐厅,厨房对着卫生间,槽点也不少。
户型比较挑人。
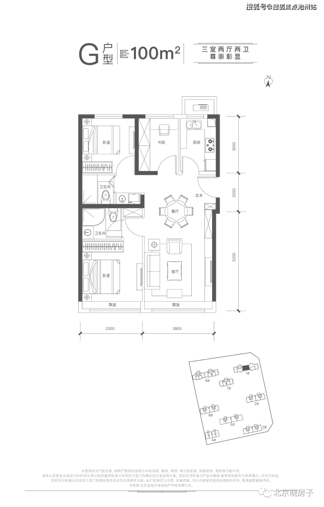
100平3居2卫,中户户型。
南北通透,双暗卫,和刚刚的边户面积差不多。
增加了一个卫生间,但北侧书房的面积也更小了。
两面宽的户型,南向的面宽比刚刚的边户有优势,但少了一个飘窗。
101平,3居2卫,最近两年看过房的朋友们是不是很熟悉?
标准89平的限竞房户型。
南北通透,全明户型。主卧套间设计,没硬伤,但也没亮点。
100平3居2卫。
南北通透,南向双飘窗,说是3居,其实是2居半的格局。
入户有玄关,但是入户玄关处浪费挺大的,门口那间书房,就真的是书房了。
119平,3居2卫,主力改善户型。
南北通透,全明户型,3面朝南,总的来说无硬伤。
主卧套间设计,入户有玄关,2梯2户,私家电梯厅。
改善能给的基本都给了,就是户型稍微差点意思。
北京朝阳区【华樾国际领尚】
售楼处热线:400-100-1299转接7777【售楼中心】
网上售楼中心〢欢迎来电咨询〢安全通话隐藏真实号码〢预约可享内部优惠〢
郑重承诺:开发商售楼处直销,绝不收取任何费用,中介勿扰!
声明:本文由入驻焦点开放平台的作者撰写,除焦点官方账号外,观点仅代表作者本人,不代表焦点立场。
