〖绿地香港云缦世家〗##售楼处电话是多少?营销中心地址
扫描到手机,新闻随时看
扫一扫,用手机看文章
更加方便分享给朋友
☘️☘️嘉兴南湖〖绿地香港云缦世家〗
☎☎售楼处电话:400—100—1299转5 5 5 5
◆◆网上售楼中心——欢迎来电预约一对一销售专业讲解服务!
◆◆Vip贵宾置业===来电预约享内部折扣===匠心钜制恭迎品鉴!
项目地址:嘉兴市南湖区尹庄路和纵一路交汇处
首开时间:2021年9月25日
首开均价:19600+三车一储
首开总价:165:450万左右 210:560万左右
首开楼栋:9#、10#、11#、12#、13#
容积率:2.2
绿化率:30%
交付标准:精装修
交房时间:2024年10月30日
物业及物业费:上海盛高物业,3.3/平
建筑构成:9幢高层、2幢小高层、2幢人才公寓,可售住宅478套
面积及户型:165㎡ 4/2/3、210㎡ 4/2/3
☘️☘️嘉兴南湖〖绿地香港云缦世家〗
☎☎售楼处电话:400—100—1299转5 5 5 5
示意图,来源于网络
嘉兴很少有一个项目,让万众如此期待。
近日来,云缦世家样板间公开的消息传出,便有不少慕名而来的客户前来观赏,作为主流产品165㎡大平层,带给市场的不仅仅是尺度的震撼,更是嘉兴未来奢华生活的纯粹格调。
YMAN
超薄宽屏大四房 嘉兴臻罕
YUNMAN TIME
每年一度的手机发布会,不断刷新人们对手机厚度的想象力。
和智能手机一样,业内共识:户型设计,越薄、越宽,越难。
这也是为何,我们有理由相信:云缦世家建筑面积约165㎡户型,将成为嘉兴户型教科书,引领人居空间新变革!
为什么绿地香港要花如此大精力,做超薄宽屏户型?
为了健康。
特殊时期,专家曾呼吁:通风,才是预防病毒较佳方案。
短进深户型,由于南北窗户距离短,LDK空间(Livingroom客厅-Dining room餐厅-Kitchen厨房)的通风效率更高,病菌更少滋生。
云缦世家超乎常规的南向大面宽,更缔造超常规采光面:卧室朝南,未来每个“易感冒”的寒冬,每间卧室都能直晒到和煦阳光,犹如一间横着长的“光之屋”。
其次,还为了居住舒适度。
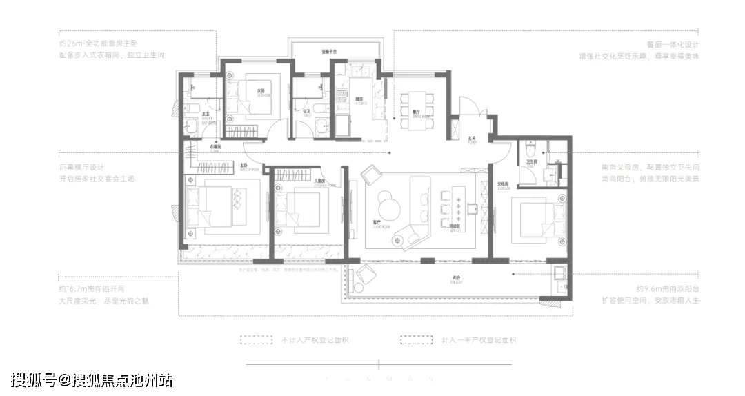
云缦世家建筑面积约165㎡户型,每一功能空间的尺度都尽可能阔绰,在同类面积段中都相当少见。
随着二胎时代的普及,一家四口+长辈或保姆是较低标配,四房,是住宅的较低门槛,这一户型则是“货真价实”的大四房,居住舒适度不言而喻。
YMAN
超尺感功能空间 天生改善
YUNMAN TIME
对于用来【住】的房子,空间和尺度很重要。
云缦世家建筑面积约165㎡双套房户型的出现,代表着绿地香港对优质舒享生活标准的理解。
样板房实拍图,具体以实际交付为准
舒享翻倍的Double空间
由私属卫浴、衣帽间构成的主卧套房,是舒享生活的代表呈现。
步入式衣帽间、270°转角飘窗、星空SPA卫浴等气派设计,让主人的私属时刻倍感尊崇。
独特的双套房的设计,又让这份尊崇乘以二,让舒享叠加,亦让美好叠加。
样板房实拍图,具体以实际交付为准
景观无界的Double视野
尽可能地消弭建筑与自然的边界,是悦然身心的首要条件。
建筑面积约165㎡户型,提供了约6.25米的大气洄游巨厅,以及总长约17米的南向开间。
以朗阔向阳的生活态度,收纳日常光影,让生活四季明媚。
约9.6米巨幕阳台和南向双飘窗的设计,更是为居者提供了环幕级视野。不论在家的哪一处,楼下的景观都能一览无余。
在更多的阳光自然的陪伴下,居家的游乐嬉戏、工作阅读、交流对话都显得开阔无边。
示意图,来源于网络
YMAN
超尺感功能空间 天生改善
YUNMAN TIME
不仅尺度优秀,云缦世家建筑面积约165㎡户型还暗藏各种“意想不到的彩蛋”:
洄游空间、独立玄关、双客厅、多功能厨房餐厅、超大尺度共享式景观与工作阳台……
样板房效果图,具体以实际交付为准
洄游空间的Double享受
所谓洄游空间设计,就是通过巧妙的空间布局,在让家中显得更大的同时,还能兼顾功能上的多样需求。
建筑面积约165㎡户型通过环形动线,为居者提供豁然开朗的视觉感受。
巧妙运用独立玄关,为归家划定三种彼此区隔的动线。
动静分离,主客尽欢,为业主提供了多重入户的墅质体验。
中西厨房凭借可折叠的移门隔断,实现餐厨场景的随心切换。
家庭聚会,可容纳十几人的欢乐;私享时分,调杯咖啡,或少饮片刻,轻松承载你的自如想象。四季的食光,从未如此丰富而生动。
样板房效果图,具体以实际交付为准
景观阳台的Double体验
在繁华都市里,我们看惯了霓虹喧嚣,习惯了繁琐日常,唯有舒适的家居生活才是我们的内心向往,而阳台作为住宅的延伸空间,不仅是居者优雅生活的缩影,更是人本与自然和谐相处的场所。
声明:本文由入驻焦点开放平台的作者撰写,除焦点官方账号外,观点仅代表作者本人,不代表焦点立场。
