《中海京叁號院》-售楼处电话是多少?24小时位置及详情?
扫描到手机,新闻随时看
扫一扫,用手机看文章
更加方便分享给朋友
🍀🍀北京大兴区【中海京叁號院】
☎☎售楼处电话:400—100—1299 转接 5555【售楼中心】
★彡提-前-来-电-预-约-登-记—售楼处1v1销售专业讲解〢一对一热情服务〢
★彡温馨提示:网上售楼中心〢欢迎来电咨询〢预约可享内部优惠〢匠心钜制恭迎品鉴〢
开发商:中海地产
物业公司:中海物业
物业类别:大平层
建筑类型:板楼
产权年限:70年
环线位置:五至六环
面积区间:168/200/220/240㎡大平层
产品价格:1200万-1800万左右
装修标准:国际先进品牌精装12000-20000/平
绿地率:32.2%
容积率:2.5
得房率:76-78%
建筑规模:26.2万㎡
楼栋总数:21栋
总户数:998户
占地面积:8.5万 ㎡
建筑面积:26.2万 ㎡
容积率:2.50
物业费:暂定6.88
供暖:集中供暖 地暖 30
层高:3.05-3.15米
拿地时间:2020年8月
交房时间:预计2023年底
绿化率:35%
车位配比为:1:1.2
项目特色:品牌地产,国际化社区,豪华居住区,景观居所,宜居生态地产
内部配套:国际美学园林,顶奢私享会所,18班幼儿园。
【项目特点】
1.较大楼间距能达到 140 米,每栋一个单元两梯两户。
2.LDK一体式墅质巨厅,追求优质空间黄金分割原则,各空间尺度均优于分割标准。
3.会客厅面宽6m起,优质视野尊享阳光。
4.国际顶豪标准,100㎡超大边厅,270°采光。
5.超大主卧套,面宽较高达七米,双洄游设计,五星级奢华。
6.园林设计参考纽约中央公园打造外部高纵深围合,内部空间营造的设计理念,打造现代多层次折叠的园区。
【项目生活配套】
「交通」:依托亦庄“7+1+4”轨道交通布局,京台、京沪、荣华路等三横五纵交错,300米可达T1号线奔驰北站,可换乘亦庄线、S6号线、8号线。
「商业」:16.3万龙湖天街(规划中)一路之隔,5分钟到达上海沙龙、盒马鲜生,10分钟可达大族广场、沃尔玛山姆会员店、力宝广场。
「学校」:家门口教育资源林立,北京二中亦庄分校50米、亦庄实验中学50米、人大附经开学校500米、亦庄实验小学500米、亦庄五幼500米、第二中心幼儿园500米、中芯国际幼儿园700米、中芯国际小学1公里、耀华国际幼儿园2.5公里等。
「公园」:南海子湿地公园、凉水河公园、主题体育公园三大公园环抱,5分钟可达。
「医疗」:5分钟可达北京中医学大学东方医院、10分钟可达北京同仁医院(全科三甲)和北京爱育华妇儿医院、15分钟可达国家康复医院等。
「高端休闲」:15分钟即享鸿禧高尔夫高端体验。
【项目区位图】
【中海藏峰再领人居创构先进】
1)责任央企中海地产北京较高产品系藏峰系又一先进之作,领衔北京市场人居标准。
2)北京向南计划核心区域、“三城一区”、高端产业自贸区赋能轴心,北京科创未来方向锚定之地。
3)先规划后建设,紧邻亦庄经开区核心产业区域旁的高端生态住区,集高端商业、国际教育、科创文化、三甲医疗于一体。
4)11平方公里北京较大湿地公园供氧,凉水河公园、生态主题体育公园环绕,全龄生活运动休闲场。
5)中海较高端产品系藏峰系,中海甲叁號院迭代产品,从曲线美学到边界艺术的再度创新。
6)国际化大平层建筑标配,全玻璃幕墙+铝板,立面尽展劳斯莱斯极简线条,3.15米顶质层高体验。
7)致敬纽约中央公园经典空间园林设计理念,尽享“内镜外景”双重空间景致。
8)近2000㎡美学馆私人会所,涵盖艺术鉴赏、社交交流、运动健身、泳池瑜伽等多重功能,搭建全球品味共识,塔尖表达艺术和情感交流的场所,亦庄少有。
9)168-240㎡全千万级天际大平层,国际化高端纯粹住区。
10)16.3米巨幅落地玻璃窗,打造北京“无界天幕”之最,十个观景窗三面环视俯瞰全北京。
11)北京豪宅无可争议的户型顶配,中海户型进化集大成者,北京少有全线四面宽、全南北通透,豪华多套房设计,卧室凸窗全赠送。
12)LDK一体式墅质巨厅,黄金空间分割尺寸,匹配塔尖人士多元场景百变空间。
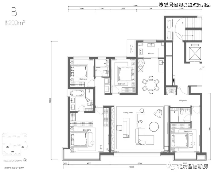
【户型图】
·168㎡户型:3+1四面宽6.6米大宽厅,眼镜户型打造两代人居私密空间。
·200㎡户型:4+1四面宽40平米MAX巨厅,双套房。
·220㎡户型:4+1四面宽·十字双洄游眼镜户型,全年龄层奢享空间。
240㎡户型:4+1四面宽·主卧双洄游户型,超大边厅,尺度彰显身份。
🍀🍀北京大兴区【中海京叁號院】
☎☎售楼处电话:400—100—1299 转接 5555【售楼中心】
★彡提-前-来-电-预-约-登-记—售楼处1v1销售专业讲解〢一对一热情服务〢
★彡温馨提示:网上售楼中心〢欢迎来电咨询〢预约可享内部优惠〢匠心钜制恭迎品鉴〢
声明:本文由入驻焦点开放平台的作者撰写,除焦点官方账号外,观点仅代表作者本人,不代表焦点立场。
