『华樾国际领尚』售楼处电话|地址【售楼中心】24小时电话!
扫描到手机,新闻随时看
扫一扫,用手机看文章
更加方便分享给朋友
北京朝阳区『华樾国际领尚』
售楼处电话:400-100-1299转接7777【售楼中心】
网上售楼中心〢欢迎来电咨询〢安全通话隐藏真实号码〢
开发商售楼处直销_欢迎来电预约尊享内部折扣_匠心钜制恭迎品鉴!
樾国际领尚是限竞房,5年限售,但价格的诱惑总是最直接的。
项目信息整个小区的容积率是2.8,一共8栋楼,没有东西向。
外立面采用玻璃、真石漆、铝板。
社区园林设计了很多生活场景,露天放映厅、共享健身房、社区归家大堂、跑道…都是年轻人喜欢的。
119平和145平做到了2梯2户,层高2.95米。
101平的1梯2户,层高也是2.95米。
其他是2梯4户或者2梯3户,层高2.9米。
社区一共738户,全部为产业化精装。
社区里有4%的企业自持,在8号楼里。

开发商:北京市金旭开泰房地产开发有限公司
楼盘位置:工朝阳一东坝]金盏国际合作服务区
物业公司 :旭辉永升物业
物业费:待定
房屋类型:小高层、高层_
产权年限 :70年
建筑风格 :现代风格
拿地时间 :2020年12月14日
交房时间 :预计2024年上半年
供暖方式 :集中供暖
总层高:10~26层
单层高:2.9米
梯户比:2梯2户、2梯4户
楼栋数:8栋
绿化率:30%
首付比例:首套40%、二套80%
总户数:738户
单价 :7.1万起总价区间 :580-1100万
占地面积 :27000平
建筑面积 :74000平
面积区间 :75-144平
得房率:加赠送75%-80%
户型介绍
户型做到了刚需、刚改、改善全面积段覆盖。
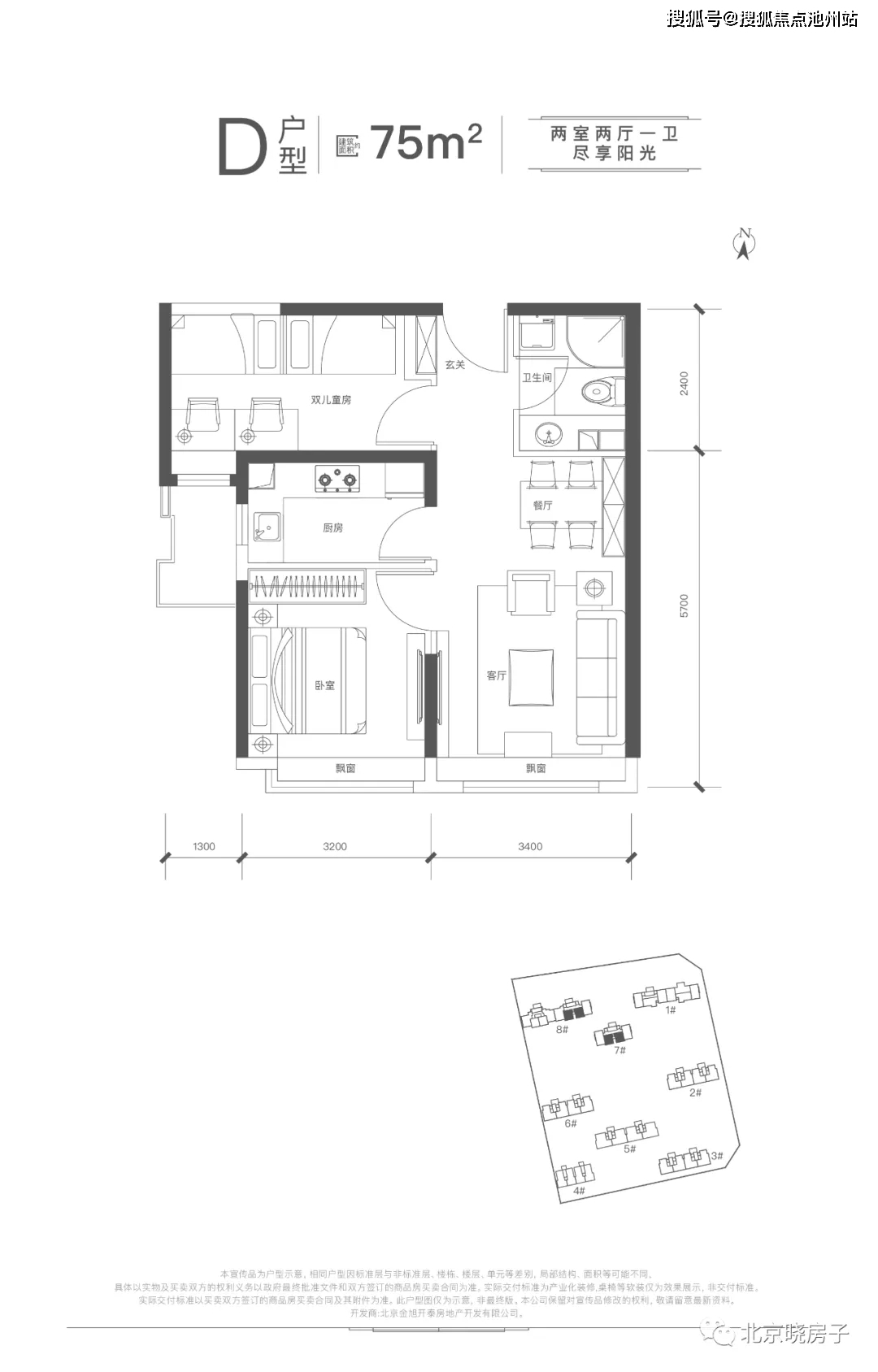
刚需:75平2居。
刚改:96平、98平、100平、101平3居。
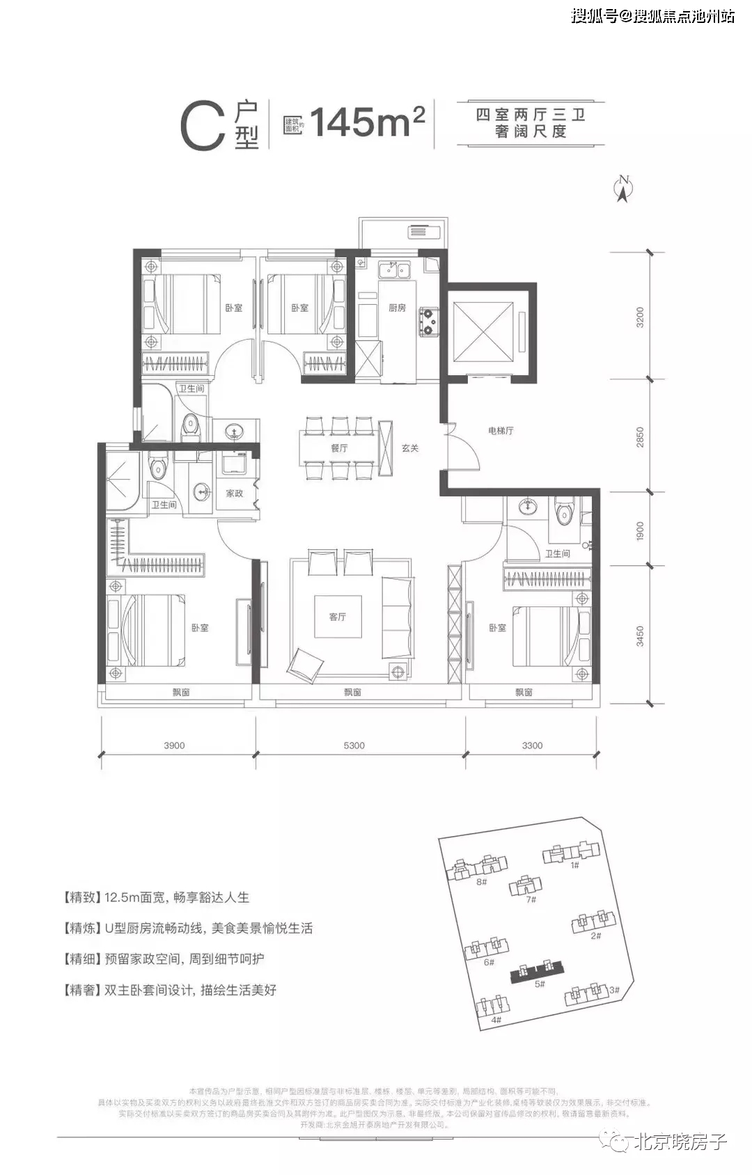
改善:119平3居,145平4居。
75平2居,标准的纯南两居户型,没什么新奇的。
整体看上去更“矮胖”一些,南向整体面宽达到了7.9米。北侧的次卧敢放两张床,足见面宽够大,但也因此让北侧小卧室的采光问题更严重了一些。
96/98平3居1卫,边户的主力户型。
南北通透,客厅的窗户朝西。南向两个卧室。
厨餐客一体式设计,超强的窗墙比,让客厅十分敞亮。
同时南向两个卧室均带飘窗。
还是要提窗墙比的这个概念,不管南北向,开窗面积都提升了,采光和视野很不错。
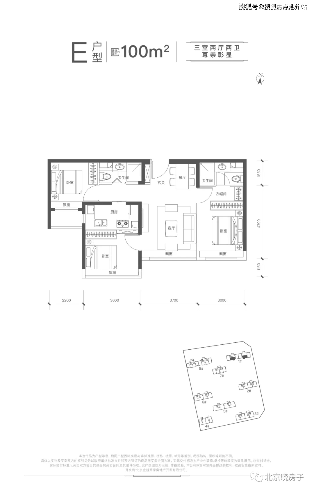
100平3居2卫。纯南3居。
这是个南向优质采光户型,南向的4个飘窗也增加了性价比。
优质的南向面宽,但南北并不通透。
十字动线,浪费了不少过道面积。
入户正对餐厅,厨房对着卫生间,槽点也不少。
户型比较挑人。
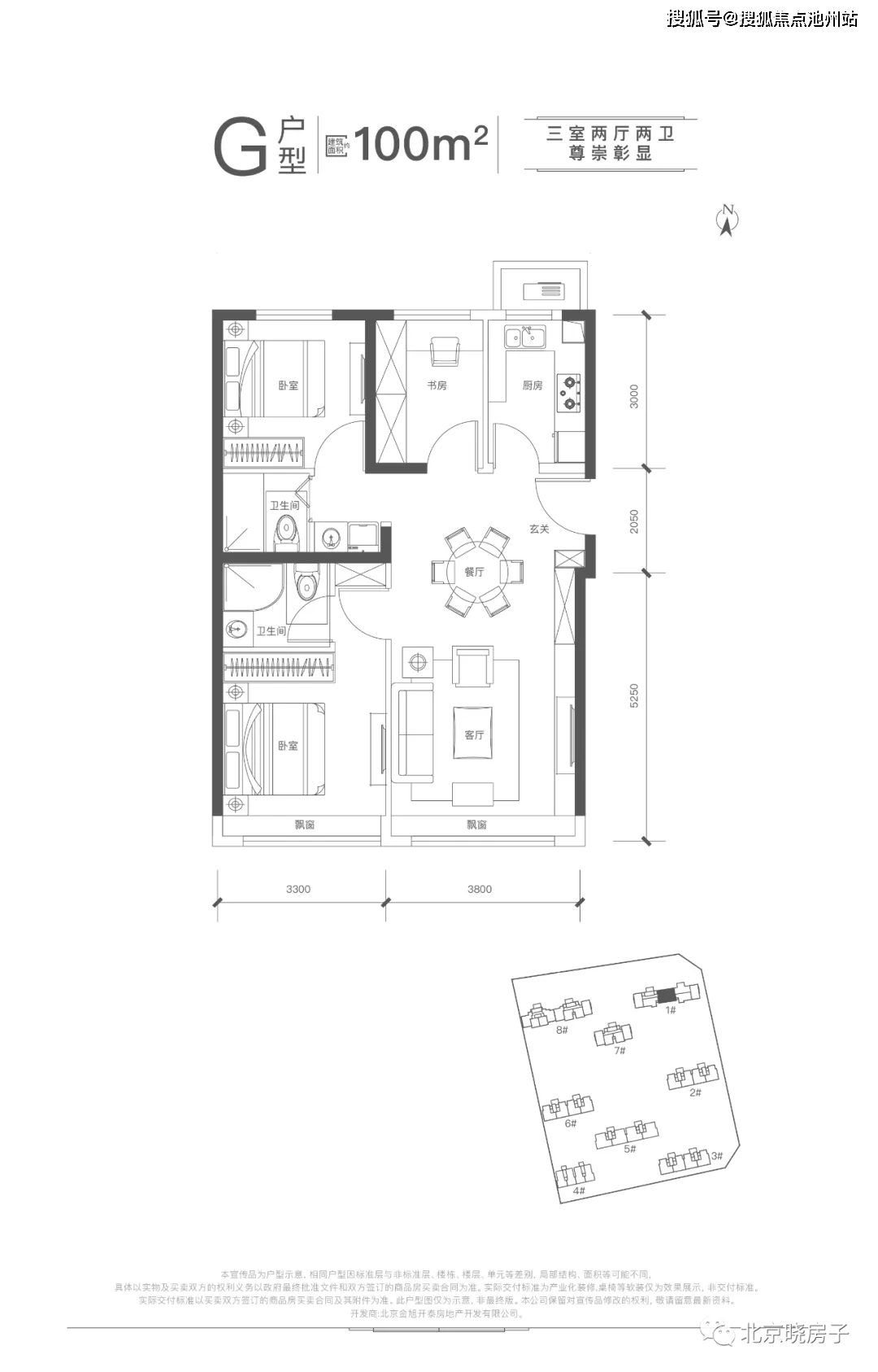
100平3居2卫,中户户型。
南北通透,双暗卫,和刚刚的边户面积差不多。
增加了一个卫生间,但北侧书房的面积也更小了。
两面宽的户型,南向的面宽比刚刚的边户有优势,但少了一个飘窗。
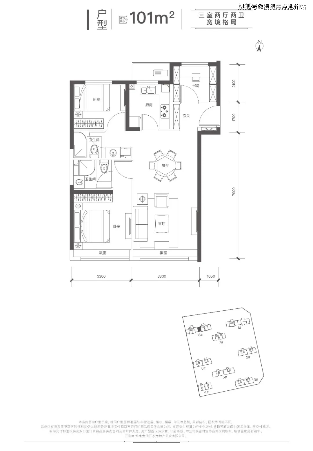
101平,3居2卫,最近两年看过房的朋友们是不是很熟悉?
标准89平的限竞房户型。
南北通透,全明户型。主卧套间设计,没硬伤,但也没亮点。
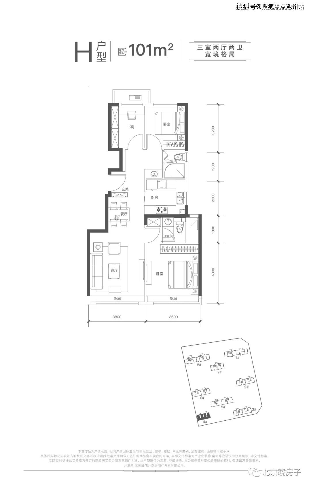
100平3居2卫。
南北通透,南向双飘窗,说是3居,其实是2居半的格局。
入户有玄关,但是入户玄关处浪费挺大的,门口那间书房,就真的是书房了。
119平,3居2卫,主力改善户型。
南北通透,全明户型,3面朝南,总的来说无硬伤。
主卧套间设计,入户有玄关,2梯2户,私家电梯厅。
改善能给的基本都给了,就是户型稍微差点意思。
北京朝阳区『华樾国际领尚』
售楼处电话:400-100-1299转接7777【售楼中心】
网上售楼中心〢欢迎来电咨询〢安全通话隐藏真实号码〢
开发商售楼处直销_欢迎来电预约尊享内部折扣_匠心钜制恭迎品鉴!
声明:本文由入驻焦点开放平台的作者撰写,除焦点官方账号外,观点仅代表作者本人,不代表焦点立场。
