珠江天樾书院售楼处电话—地址—售楼中心24小时电话—楼盘详情
扫描到手机,新闻随时看
扫一扫,用手机看文章
更加方便分享给朋友
北京昌平区『珠江◆天樾书院』
☎☎TEL℡:400-100-1299转接7777【售楼中心】
‥网上营销中心_欢迎来电预约尊享VIP内部折扣_匠心钜制恭迎品鉴!
编辑
项目信息
珠江·天樾书院项目雄踞北五环贵脉之地,盛纳2200年温榆河繁樾之境,周边学府环伺,以一方庭院围合出城市的理想生活。
产品:上、下叠墅
房本:270-310平米
花园:50-210平
使用面积:450-510平
报价:
上叠:1001-1318万
下叠:1148-1394万
编辑
项目位置:京承高速第七出口(北七家)定泗路与立汤路交汇处向西行2公里
绿化率:40%
交房时间:2022年下半年
交房标准:可毛坯可精装
层高:一层3.3米,二层3.1米,三层3.3米, 四层3.1米,地下一层4.5米,地下二层3.6
面宽:8.1米
楼间距:23-25米
户型设计:4居到5居(全套房设计)
编辑
十大舒适级:
①8.1米超大面宽
②单层面积超百平
③户型方正
④层高较高4.5米
⑤4-5居全套房设计
⑥超大主卧套房
⑦超宽三车位
⑧每层独立水吧台
⑨地下面积地上化采光
⑩功能分区适合全生命周期三代同堂互不打扰
十大特点:
①际大师设计——全新雅宋风格
②全石材立面
③超大楼间距
④恭王府造园,五进式归家,精致园林夜光跑道
⑤独门独户独院
⑥私家电梯
⑦超大私家庭院
⑧精装门头体系
⑨使用面积高达450-510㎡
⑩七大建筑精工
产品设计
编辑
天樾书院于约1900亩纯粹墅区之上,倾心打造建面约270-310㎡城市花园阔墅,传承东方传统院落文化精髓,更融合西方建筑精华,礼献一处符合当代城市审美取向的人居庭院,户户独门独院,更锻造出宅门、坊巷、院落三重归家礼序,以专属定制的精工门头体系,尽显当代大家族的风范。
编辑
编辑
编辑
珠江将传统的中式文化精髓结合西方形制融入进了当代生活里,重新梳理了传统与现代、东方与西方、人与空间的关系,更是携手国际设计大师,一街一巷都坚持溯源地域和人文的特色,匠造专属一座城市的院子,呈现入则清幽,出则繁华,一揽自然盛境的府园画卷,将匠心融入作品以大师之实力敬献一个时代的经典作品,再造当代人文院墅,赋予居者更多的生活想象。
户型介绍
上叠中户户型赏鉴
编辑
编辑
编辑
编辑
编辑
编辑
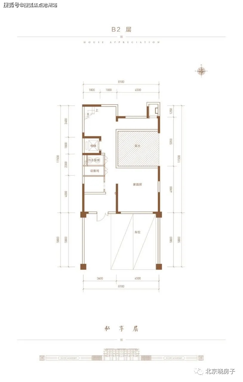
下叠中户户型赏鉴
编辑
编辑
编辑
北京昌平区『珠江◆天樾书院』
☎☎TEL℡:400-100-1299转接7777【售楼中心】
‥网上营销中心_欢迎来电预约尊享VIP内部折扣_匠心钜制恭迎品鉴!
声明:本文由入驻焦点开放平台的作者撰写,除焦点官方账号外,观点仅代表作者本人,不代表焦点立场。
