石景山【长安悦玺】售楼处电话是多少?售楼处位置?—图文解析!
扫描到手机,新闻随时看
扫一扫,用手机看文章
更加方便分享给朋友
北京石景山「长安悦玺」
品鉴热线✆:400-100-1299转接6666【售楼中心】
_Vip营销中心_____欢迎来电预约尊享内部折扣_____匠心钜制恭迎品鉴!
小区共有14栋楼,其中有9层洋房、16~18层的小高层、27层的大高层。
三居室建面约97、104平米。四居室建面约122、124、138、152、173平米。从刚改到终极改善,覆盖了所有年龄,所有需求的买房人群。
重点来看户型。不仅从面宽上较之前的产品增加、进深减少,每个房间的使用率也大大提升。
所有户型都南北通透、部分户型配备了家政间。
建面约97平,是长安悦玺总价较低的户型,770万起就可以入手。
哪怕最小的户型,南向面宽也达到了约9.3米。
客厅、次卧、主卧三面朝南,享受充分的日照时间。其中主卧是独立设计,动静分离。宽体U型厨房,餐客一体,格局非常方正,各个功能区都能充分利用。
建面约104平米的三居,格局是97平户型的放大版,尺度更宽阔。
建面约122平同样三面朝南,南侧的面宽达到了约10.3米,客厅面宽约3.9米。主卧面宽约3.5米,带明卫的套间设计。
建面约138平户型是约122平的加强版,客厅面宽达到约5.35米,尺度更大。而且独立电梯厅入户,不仅增加了入户私密性,还能有更多的收纳空间。
建面约124平户型,是长安悦玺的主力户型。这里来重点说一下。
这个户型,南向面宽达到约10.2米,八窗全明无暗卫。

独立玄关是一个加分项。
餐厅+客厅+厨房,形成了非常大的活动空间。客厅面宽约3.8米,客餐厅进深约7米,不算餐厅,总的活动面积就达到约26.6平。
所有的家庭成员休息空间分布在四个角落,中间是一个大的家庭活动区域。
这样户型的格局,好处不仅是在空间利用上,没有多余的过道浪费面积,而且改变了传统家庭客餐分开的情况。
家人们一天的互动,不仅仅停留在吃饭的空隙间。做饭可以让更多家人参与进来,客厅也是家庭活动厅,日常增进更多的情感交流。
周六日客人聚会,这里就是一个大的party场所。坐在餐桌聊聊股票、娱乐八卦,小酌一杯,或者到沙发区打游戏、看电影,各自欢乐。
主力户型建面约152平可圈可点之处也很多。总面宽达约13.5米,客厅面宽约6.5米。
因为客厅足够宽绰,还可以多摆放一张办公桌,或者是小小的读书空间,更丰富了空间功能。
餐厅也可以和岛台结合,西式中式餐饮自由切换。
方厅的作用,其实是对当下家庭关系的一种反省和突破。整个户型的餐客厅总体面积约48平左右。空间很大,即使所有人都在此活动,也不会局促。
当亲朋好友们处在一个开放性的,视线可触达的大空间内,其亲密感、互动性是传统的餐客厅无法达到的效果。

主卧面宽约3.7米,进深长约7.05米,足以设计出一个L形衣帽间。主卫面宽尺度大,可以实现双台盆设计。
另外整个户型中也预留了充足的储物空间,满足家庭生活的几乎所有的收纳需求。这一切,也都是典型的生活场景还原设计。
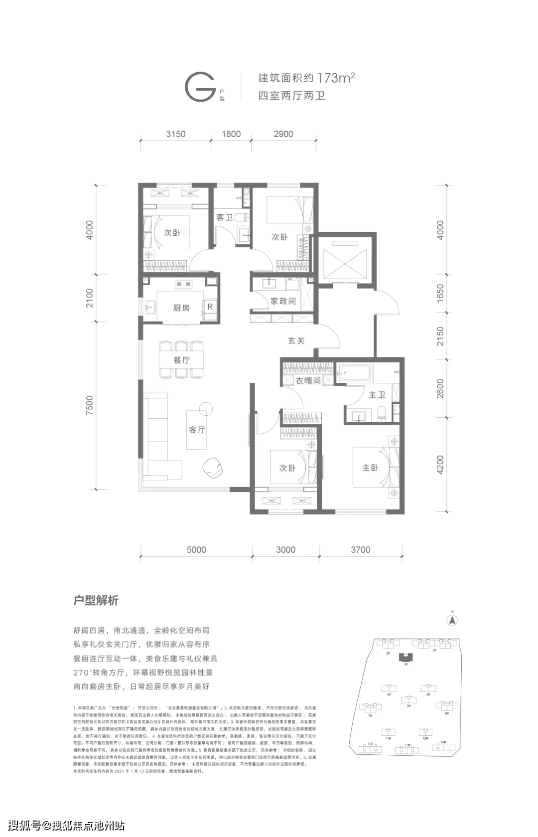
建面约173平户型,处于楼王的位置,是长安悦玺较大的户型。270°转角边厅,客餐厨连体,餐厅也有明亮的大窗,能享受到较好的采光,是小区园林较佳观赏点。
南北通透四居,私享玄关门厅,家政间很大,亮点多多。
03
已售罄长安和玺新中式苏州园林风格让很多买家们眼馋。
好在,这次长安悦玺也推出了新中式园林,与前者神似,但在具体设计中,又多加了很多巧思。
喜欢中式风格的朋友们,不用再遗憾了。
建筑立面典雅大气。
大门依然参考了王府大门形制,在古代大门中规格较高,高近7米,宽度近30米,两侧的石材拼接艺术,将山水收纳其中,颇有种千里江山尽在于此的意境。
园林设计采用了背山望水环抱式+中国传统中轴对称布局,传承了北京皇家传统风水布局方式,超大尺度空间,尊享礼序层次。
小区横轴空间狭长,纵轴空间尺度宽广,横纵两轴的空间打造,让小区形成了既有多重轴线体验空间,又有景观亮点的独特设计。
长安悦玺的园林与石景山的山水文脉相呼应,创造出“可游、可行、可望、可居”的自然栖居住所。
在小区各处,分布着一个个园区。
水院、乐院、林院、书园、禅思空间、小型全龄空间、颐养空间等等,这些空间,由一条560米的悦享跑环串联起来,本来相隔开来的各个园区,化散为整,内静外动,交相呼应。
声明:本文由入驻焦点开放平台的作者撰写,除焦点官方账号外,观点仅代表作者本人,不代表焦点立场。
