【金舆东华】售楼处电话—地址—售楼中心24小时电话—楼盘详情
扫描到手机,新闻随时看
扫一扫,用手机看文章
更加方便分享给朋友
北京东城区【金舆东华】
售楼处电话℡:400-100-1299转接7777【售楼中心】
_Vip营销中心__欢迎来电预约尊享内部折扣__匠心钜制恭迎品鉴!
(为避免客户集中参观-影响服务质量和参观体验-客流高峰时期仅接受预约参观)
01
无论豪宅市场怎样风云变幻,地段是永恒的价值,所以“内城豪宅”永远是主角之一,一出世,必定是万众瞩目。
而今天,从东华门出发,一路向东,穿过金鱼胡同,来到金鱼胡同荷金宝街的交汇处,有一处豪宅----金舆东华
编辑
金舆东华实景图、
就是这短短的1200米路程内,汇集了各类先进资源数不胜数,稀缺不可复制。
编辑
北海公园、景山公园、中山公园、菖蒲河公园、皇城根遗址公园等等先进皇家苑宥扎堆;
编辑
故宫、中国国家博物馆、国家大剧院、中国美术馆、北大红楼、北京人民艺术剧院等先进文化资源交相辉映;
编辑
国际经典五星酒店华尔道夫、能揽阅整条长安街盛景的文华东方、时尚奢华的王府半岛、有开国排名前列宴承誉的北京饭店、彰显典雅的丽晶酒店等世界奢牌酒店云集;
编辑
史家小学、景山学校、西总布小学、北京第二中学等学府环伺,拥有悠久建校历史,优渥师资力量,底蕴博厚的后代涵养教育,深受城市精英家庭乃至驻华外使的追捧。
编辑
协和医院实景图
协和医院、同仁医院、北京医院等世界重点医学组织,以及多个大型综合三甲医院,汇聚世界的医疗设备和专业人才,提供360度健康守护。
02
还有一种衡量方法,那就是豪宅“血统论”。
若以血统论,北京豪宅最纯正高贵的血统有三:一则是西贵云集的西山别墅板块,一则是连接世界的中央别墅区,一则是基于故宫的文化与政治中心资源的豪宅。
编辑
三者之中,当以第三者为马首,也以第三者最为稀缺。当中央别墅区核心地段还有新房在售,当传统的西山别墅板块还有二手房可供选择时,第三类豪宅早已经是传说了。
在“血统豪宅”面前,环线这一北京豪宅价值利器,成为了锦上添花的存在。
毕竟,超五星级酒店可能择址再起,先进学校和医院可以开若干个分校分院,但是故宫、天坛、孔庙、雍和宫、国子监等等文化历史瑰宝,是少有、不可复制也不可移动的。
编辑
03
血统豪宅与环线豪宅,究其本质,也还是对资源的占有。其区别,是资源的稀缺性。
若是把那1200米再走一遍,这一次,我们从金舆东华出发,一路向西,过金鱼胡同,最终到达东华门,就能感觉到“东华门1200米,有豪宅”这句话真正的分量了。
编辑
这条路,李鸿章,清末大学士那桐,清朝外省觐见皇帝的封疆大吏,都走过。千百年来,北京城都是以故宫为中心,向外涟漪式扩张。离故宫越近,意味着更高的权力,更集中的资源。
编辑
从金鱼胡同走向东华门,更像是一段权力的“朝圣”之旅,一场资源与利益的攫取之旅。
编辑
当北京以故宫为中心的格局没有改变,当中国社会结构发展的规则没有变,那么,这种价值感知就不会改变,并且其中心吸附力会越来越强。
所以,这1200米的路程上,聚集了前门23号、长安俱乐部、香港马会等先进定制圈层社交场。
编辑
距离故宫东华门外1200米,东城区金宝街上,少有70年产权住宅
----金舆东华!
04
金鱼东华基础信息
编辑
▲金舆东华户型剖面图
名称:金舆东华
开发商:北京昱置房地产有限公司
地址:北京市东城区金宝街90号
风格:摩登英伦
产权年限:70年
装修情况:精装修
总户数:107套
绿化率:30%
车位配比:1:1.1 (产权车位)
物业公司:高力国际
物业费:18元/m²·月
户型面积:244 - 443m²
户型设计|
二居:244/268/282㎡
三居:325㎡
四居:412/423/443㎡
组合户型:600-2600㎡
项目价格 :均计17万左右,总价3000万起
部分户型鉴赏
整体户型设计保持空间尺度的阔绰,功能设计的科学性,以保证行宫规制感和人居舒适感,实现建筑空间与居住哲学的和谐相融。
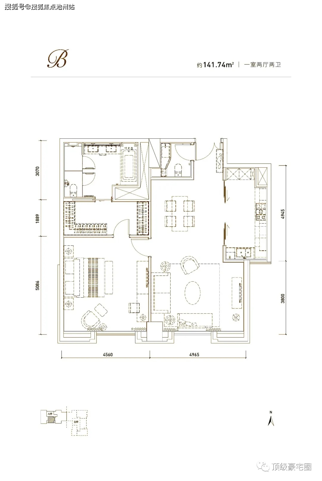
1
141㎡1室2厅2卫
编辑
,时长00:15
【介绍】纯朝南向,目前只有2套可卖。
2
244㎡ 2+1室2厅2卫
编辑
本户型样板间实拍鉴赏
,时长02:46
【介绍】纯朝东看CBD全景户型,视频是244平由意大利设计师设计宫廷风样板房,样板间设计与交付样板不同,交付格局以户型图为准。
3
282㎡2室2厅3卫
编辑
本户型样板间实拍鉴赏
,时长03:08
【位 置】目前282平只有16层以及17层有,南北通透的2居室,超大客厅
4
325㎡3室2厅4卫
本户型样板间实拍鉴赏
,时长03:37
【位 置】北向看金宝街,325平三居套房设计,南向2个卧室,居住舒适度很高。
5
412㎡4室2厅4卫
编辑
本户型样板间实拍鉴赏
,时长01:34
【位 置】东西南方向,412平由2个户型打通组成,所以需要2个购房资格,视野采光面无敌。
6
443㎡4室3厅4卫
编辑
【位 置】非常方正的南北通透户型,443平由292平和151平打通组成,所以需要2个购房资格。
建筑特色
金舆东华采用经典欧式建筑风格,石材立面,对称设计,形体厚重,于冷静克制之中散发出自然优雅。
编辑
园林景观
5300m²的业主所享金匙密园,以贴近自然生活的景观艺术追求,精萃造园技法,打造如诗如画的生活风景。
部分样板间展示
编辑
编辑
编辑
编辑
北京东城区【金舆东华】
售楼处电话℡:400-100-1299转接7777【售楼中心】
_Vip营销中心__欢迎来电预约尊享内部折扣__匠心钜制恭迎品鉴!
(为避免客户集中参观-影响服务质量和参观体验-客流高峰时期仅接受预约参观)
声明:本文由入驻焦点开放平台的作者撰写,除焦点官方账号外,观点仅代表作者本人,不代表焦点立场。
