北京【领秀·翡翠墅】售楼处电话丨楼盘真实报道丨火遍整个楼市!
扫描到手机,新闻随时看
扫一扫,用手机看文章
更加方便分享给朋友
北京丰台区【领秀·翡翠墅】
☎☎售楼处电话℡:400-100-1299 转接 4444【售楼中心】
★★网上售楼中心——欢迎来电预约尊享一对一销售专业讲解服务!
_Vip营销中心_____欢迎来电预约尊享内部折扣_____匠心钜制恭迎品鉴!
全新【在售】楼盘信息_楼盘房价_户型详情_交房时间_周边配套_楼盘点评!〢

编辑
基本信息
项目名称:领秀·翡翠墅
产品类型:平墅 联排 双拼
产权:70年
区位:丰台王佐镇长青路南侧
开发商:国企北科建
在售平墅户型:
116㎡两居带院
137㎡ -153㎡-160㎡ 三居

编辑
编辑
在售别墅户型:
270㎡ 联排别墅
价格:平墅600万起 别墅1350万起
楼栋类型:
平墅 1梯1户
别墅 地上3层地下2层
交房时间:准现房
车位比例 :1:1.175

编辑
物业公司 :北京高力国际物业服务有限公司
物业费: 洋房 5元/㎡ 别墅8元 /㎡
绿化率 :80%
容积率: 1.24
得房率: 85%左右
供暖方式:分户自采暖

编辑
产品信息
产品:宽境联排别墅
结构:地上三层地下两层
面积:270平米
赠送:室内赠送约130平米;前庭园和后花园110平米
总价:1350万起
花园平墅
C区平层116㎡-137㎡-153㎡
C区下跃129㎡-130㎡
C区上跃137㎡-153㎡
均价:46000元/㎡起
总价:600万起
总高4-6层
C区交房时间:19年6月

编辑
项目卖点:
【配套】
环境配套:七大公园:北京园博园、青龙湖公园、北宫国家森林公园、世界地热博览园、南宫体育公园、鹰山森林公园、青龙湖水上公园。自然景区:青龙湖景区、千灵山景区;
教育配套:人大附校九年义务教育(小学、中学、高中)、人大附中丰台国际学校(中学、高中)、北京大学附小、民族大学附中;
商业配套:首创奥特莱斯、长阳CSD中央休闲购物区、加州水郡生活广场、恒源商厦、恒兴商业城、云岗百货商场、华冠天地长阳店、恒兴通宝购物中心等;
医疗配套:航天731医院,航天海鹰中心医院,规划中的武警总医院分院
【交通】
紧邻京港澳高速、五环路、长青路、京良路、梅市口路西延线等,快速直达西四环、西三环、西二环,便捷连接总部基地、金融街商圈、中关村商圈等。
轨道:14号线、房山线、T1及T2号线(规划)。
公交:458路、459路、951路、836及836区间到王佐镇政府站;321路、831路、983路到南宫新苑小区站。
自驾车:京港澳高速19A南宫/王佐出口向北第二个红绿灯右转见指示即到

编辑
【社区】
为老人&儿童提供社交和活动空间 ,社区内茶室、棋牌室、影音室等,为全家提供全天候活动空间。未来会设有缴费终端机和母婴室,阅览室等,为您提供全天候的服务。

编辑

编辑
户型鉴赏
116㎡ 户型 :

编辑
【超大赠送】地上赠送40平米花园,地下赠送80左右平米的地下室。
【户型方正】南北通透,全明户型;
【典雅书香】视野开阔,双向采光书房,人文生活内涵
129㎡ 户型:

编辑
137㎡ 户型:

编辑
152㎡户型

编辑
160㎡户型:

编辑
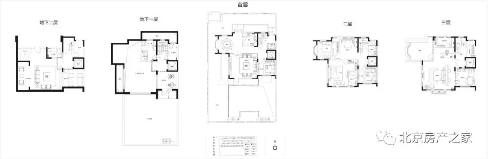
联排别墅 270㎡+赠送 实得面积540㎡:

编辑
地下挑空6.7米,室内赠送约130平米;
花园赠送90-110平米左右 ;地下一层采光优质
样板间鉴赏:

编辑

编辑

编辑

编辑

编辑

编辑

编辑

编辑
声明:本文由入驻焦点开放平台的作者撰写,除焦点官方账号外,观点仅代表作者本人,不代表焦点立场。
