北京平谷区梧桐浅山售楼处24小时官方电话丨网红热盘!
扫描到手机,新闻随时看
扫一扫,用手机看文章
更加方便分享给朋友
北京平谷区梧桐浅山
TEL:400 - 100 - 1299 转接 1111【售楼中心】
网上售楼中心——欢迎来电咨询〢——匠心钜制恭迎品鉴!
----------- 欢迎来电预约尊享内部折扣!给您一个满意温馨的家!
北京平谷区梧桐浅山
TEL:400 - 100 - 1299 转接 1111【售楼中心】
项目基本情况
项目名称:中国铁建梧桐浅山(别名)
企业名称:北京润谷置业有限公司
项目位置:平谷区夏各庄镇
占地面积:83000平方米
容积率:1.4
套数:1223套
销售均价:含全装修费用15000元/平方米(根据具体楼层、朝向在±5%的范围内调整销售价格)
产权年限:共有产权房,70年
北京平谷区梧桐浅山
TEL:400 - 100 - 1299 转接 1111【售楼中心】
2
交通路线
项目四至: 东至夏各庄西二路,南至规划夏各庄北一路,西至夏贤路,北至夏各庄中环路。
北京平谷区梧桐浅山
TEL:400 - 100 - 1299 转接 1111【售楼中心】
交通路线:顺平路、平夏路、夏贤路 、东南路
公共交通:平37路,平44路,平63路
3
周边配套
项目配有下沉式商业广场、图书馆、健身房、咖啡馆、菜市场 等,可满足日常生活需求。
北京平谷区梧桐浅山
TEL:400 - 100 - 1299 转接 1111【售楼中心】
商业配套: 银河购物中心、华联购物中心
医疗: 平谷区医院,平谷区中医院,夏各庄镇卫生院
教育 :夏各庄中心幼儿园、北京市平谷区张各庄中学
环境:万亩滨河森林公园
4
户型
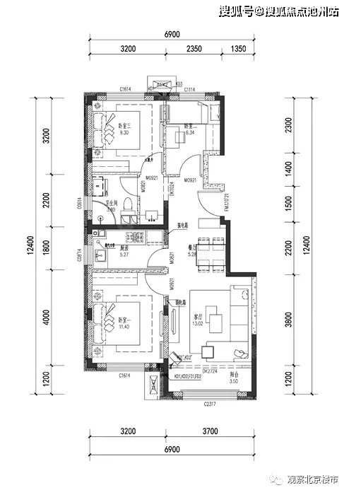
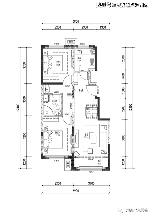
户型面积:套户型主要为建筑面积约89㎡两居室、约89㎡三居室,约110㎡三居室。
89平米两室两厅一卫A户型:
北京平谷区梧桐浅山
TEL:400 - 100 - 1299 转接 1111【售楼中心】
110平米三室两厅两卫B户型:
北京平谷区梧桐浅山
TEL:400 - 100 - 1299 转接 1111【售楼中心】
89平米三室两厅一卫C户型:
北京平谷区梧桐浅山
TEL:400 - 100 - 1299 转接 1111【售楼中心】
样板间:
北京平谷区梧桐浅山
TEL:400 - 100 - 1299 转接 1111【售楼中心】
网上售楼中心——欢迎来电咨询〢——匠心钜制恭迎品鉴!
----------- 欢迎来电预约尊享内部折扣!给您一个满意温馨的家!
声明:本文由入驻焦点开放平台的作者撰写,除焦点官方账号外,观点仅代表作者本人,不代表焦点立场。
