杭州_昆仑中心售楼处电话—售楼中心地址—楼盘怎么样_楼盘解析
扫描到手机,新闻随时看
扫一扫,用手机看文章
更加方便分享给朋友
杭州【昆仑中心】
☏LET℡:400—763—1618 转接 67600【售楼中心】
__Vip营销中心——〢网上售楼中心〢欢迎来电咨询——预约可享内部优惠〢
概括:昆仑中心位于上城区钱江新城、富春路与望潮路交叉口,共2栋高层塔楼,分为东西AB座,总建筑面积约6万平方米、东面为稠银大厦、南侧为富春路,西面为横店大厦、北侧为钱投近江国际、距离地铁一号线只有200米,已经建好的望江隧道近在咫尺,交通十分便利。
楼盘名:昆仑中心
楼盘板块:杭州上城区钱江新城板块
开发商:杭州昆仑置业有限公司
类型:酒店式公寓
产权:40年
地铁:1号线4号线近江站200米
总户数:可售40套
户型:大平层公馆(通燃气)
层高:3.9米
价格:暂定
面积:约172-180-439-589方
装修与否:精装交付
交付时间:现房出售

区域优势:一条纽约湾将曼哈顿孕育成国际金融中心,成为美国经济心脏。钱塘江让杭州备受世界瞩目,伴随着钱江新城的崛起,钱江 CBD 逐步成为中国版“曼哈顿”,影响着中国的经济走向。
钱江新城位于浙江省杭州市上城区的东南部,钱塘江北岸,占地21万平方公里,这里集行政办公、金融、贸易、信息、商业、旅游、居住等功能于一体,是政府重点打造的杭州中央商务区(CBD)。
相关阅图:昆仑控股集团自1959年成立以来、一直致力于多元化发展,逐步形成了“以房地产开发、建设施工、商业投资和运营、教育、体育、运动医疗、金融等新兴产业并举发展”的多元格局,现集团名列中国企业500强400强、全国民营企业500强第83位、浙江省百强35,浙江昆仑置业集团成立于一九九三年,拥有房地产开发一级资质、开括进取,已成为杭州十大城市运营商之一。
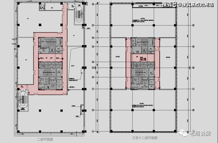
昆仑中心是昆仑置业又一力作,建筑共设2幢高层塔楼、西侧12层塔楼及东侧18层塔楼由2层裙楼联系,在裙房中设置双层通高的共享大堂,连接两幢塔楼的办公门厅,二层及部分首层设置商业功能,两栋塔楼之间的距离15米以上,满足日照要求。
商业配套:周边市民中心、杭州国际会议中心、来福士、万象城等城市坐标云集,是杭州豪宅区。
学校:天艺幼儿园,近江艺术幼儿园,杭州市开元中学,杭州天地实验小学,杭州六季装饰有限公司,浙江外国语学院附属实验学校
医院:望江街道近江西园、耀华社区卫生服务站,中国人民武警部队浙江省边防总队医院
交通:距离地铁1/4号线近江站200米,对接五号线换乘直达萧山奥体和未来科技城,家门口就是公交总部了。
户型图:



装修示意图:
杭州【昆仑中心】
☏LET℡:400—763—1618 转接 67600【售楼中心】
__Vip营销中心——〢网上售楼中心〢欢迎来电咨询——预约可享内部优惠〢
声明:本文由入驻焦点开放平台的作者撰写,除焦点官方账号外,观点仅代表作者本人,不代表焦点立场。
