北京远洋五里春秋售楼中心24小电话?网红热盘,火爆来袭!
扫描到手机,新闻随时看
扫一扫,用手机看文章
更加方便分享给朋友
北京石景山区远洋五里春秋
TEL:400 - 100 - 1299 转接 1111【售楼中心】
网上售楼中心——欢迎来电咨询〢——匠心钜制恭迎品鉴!
----------- 欢迎来电预约尊享内部折扣!给您一个满意温馨的家!
北京石景山区远洋五里春秋
TEL:400 - 100 - 1299 转接 1111【售楼中心】
远洋五里春秋位于石景山区西北部八大处公园西畔五里坨生态区,属于北京最负盛名的后西山板块,是由远洋地产与实力房企共同打造的西山春秋系低密墅区,是为城市精英阶层打造的理想城市山居。
北京石景山区远洋五里春秋
TEL:400 - 100 - 1299 转接 1111【售楼中心】
远洋邀请高级大师联袂打造五里春秋。
建筑设计//时境设计:张继元、卜骁骏
园林设计//朗道国际设计:叶翀岭
空间设计//本间综合株式会社:本间贵史
室内设计//如恩设计:胡如珊、郭锡恩、刘荣禄
春
- WULI -
秋
台 湾 大 师 力 作
——
素有空间诗人之称的跨界美学建筑师——刘荣禄
北京石景山区远洋五里春秋
TEL:400 - 100 - 1299 转接 1111【售楼中心】
采访现场实拍
跨界艺术家 ▌
建筑设计师 ▌
刘荣禄(中国·台湾)▌
○ 德国 igerman Design Award
○ 英国 andrew Martin国际室内设计大奖
○ 德国红点设计大奖
○ TD台湾室内设计大奖单层住宅设计奖
○ dea-tops艾特奖国际空间设计大奖
○ 中国室内设计金堂奖,被设计界誉为「空间叙事诗人」
北京石景山区远洋五里春秋
TEL:400 - 100 - 1299 转接 1111【售楼中心】
PS:文末有【北京】大师设计项目的合辑
项目名称:北京「远洋·五里春秋」
设计机构:刘荣禄国际空间设计 甲鼎设计&京典陈设
主要设计师:刘荣禄 陈福南
硬装团队:陈竹卫 周逸莹 严思斯 叶盛
软装团队:厉亦凡 费凡 陈妍
研发团队:黄艳芬 朱浩哲
项目面积:300㎡
项目摄影:瀚墨视觉-叶松
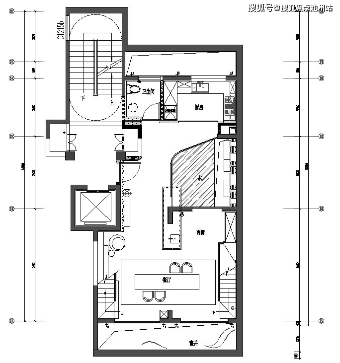
一层平面图
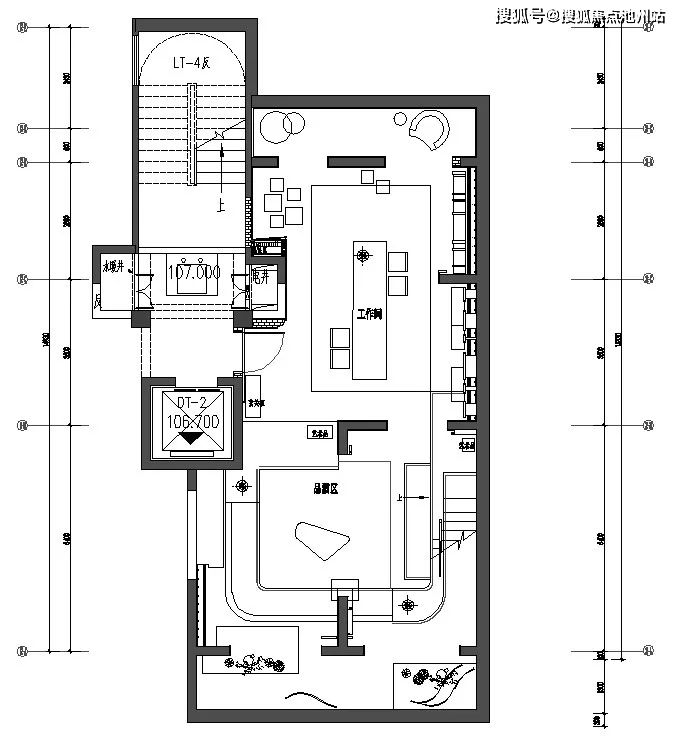
地下一层平面图
北京石景山区远洋五里春秋
TEL:400 - 100 - 1299 转接 1111【售楼中心】
光的魔法师James Turrell说
我喜欢把光作为一种物质材料
但是我的媒介是真正的感知
我想让你感觉到你的感觉
看到你自己见到的物件
光影雕琢形体
物的深邃在光影的作用下得到挖掘
北京石景山区远洋五里春秋
TEL:400 - 100 - 1299 转接 1111【售楼中心】
从阳光 空气和山风中取撷吉光片羽
借光与影的交错
打破空间关系诠释新生
将都市未来的镜像与山河春秋的沉积
一并倾注于层叠之间
北京石景山区远洋五里春秋
TEL:400 - 100 - 1299 转接 1111【售楼中心】
玫瑰慢慢地抽出枝条
长出了嫩绿的叶子
里面弥漫着玫瑰的味道
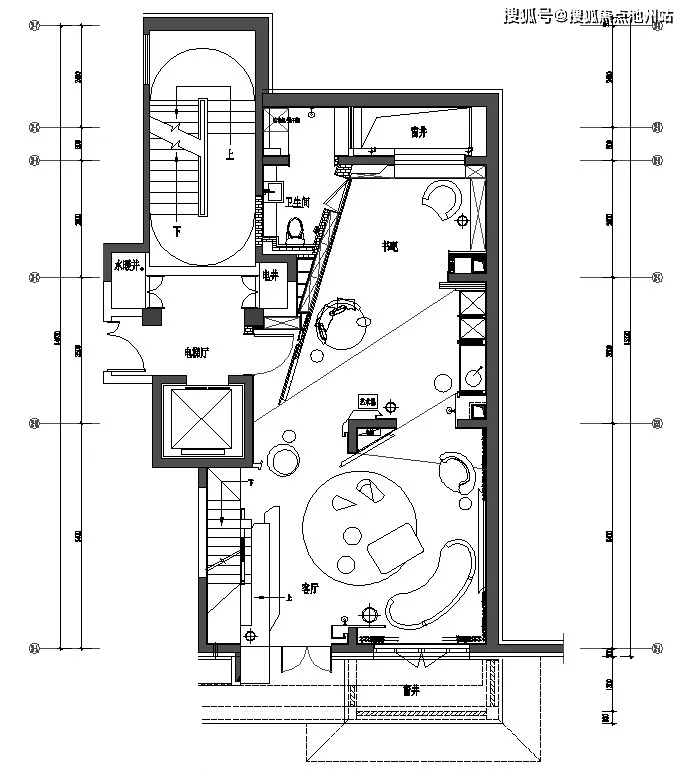
地下二层平面图
地下三层平面图
北京石景山区远洋五里春秋
TEL:400 - 100 - 1299 转接 1111【售楼中心】
网上售楼中心——欢迎来电咨询〢——匠心钜制恭迎品鉴!
----------- 欢迎来电预约尊享内部折扣!给您一个满意温馨的家!
声明:本文由入驻焦点开放平台的作者撰写,除焦点官方账号外,观点仅代表作者本人,不代表焦点立场。
