北京石景山区远洋·春秋里售楼处电话丨热盘来袭,理想居室生活!
扫描到手机,新闻随时看
扫一扫,用手机看文章
更加方便分享给朋友
北京石景山区远洋·春秋里
TEL:400 - 100 - 1299 转接 1111【售楼中心】
网上售楼中心——欢迎来电咨询〢——匠心钜制恭迎品鉴!
----------- 欢迎来电预约尊享内部折扣!给您一个满意温馨的家!
北京石景山区远洋·春秋里
TEL:400 - 100 - 1299 转接 1111【售楼中心】
远洋·春秋里——永定河畔的弄潮儿
新时代背景下,新京西生活圈正在快速发展崛起,地处永定河畔的远洋春秋里项目作为京西发展浪潮里的一员,进行了全面的升级改造。如何用现代设计的创意与既有的城市环境达到自然和谐统一的碰撞融合,都需要秉承“传承和创新”的敬畏之心。

北京石景山区远洋·春秋里
TEL:400 - 100 - 1299 转接 1111【售楼中心】
▲改造前后对比
项目背景 BACKGROUND
项目位于苹果园南路和苹果园大街交叉口东北方位,为地铁上盖项目,与6号线杨庄站无缝连接,西侧不远处就是北京较大的交通枢纽-苹果园交通枢纽。未来4条轨道交通,数十条公交线路在此交汇,交通极为便利。
北京石景山区远洋·春秋里
TEL:400 - 100 - 1299 转接 1111【售楼中心】
▲区位交通图
项目改造前规划使用功能为商业营业厅裙房和办公塔楼,于2020年竣工,建成后建筑形象比较陈旧,也没有考虑明白后期运营,基于这些原因,为了快速的把项目进行落地使用和提高运营效率,对该项目进行了全面升级改造,改造后使用功能为商业和办公。业主诉求在成本可控的前提下打造网红地标,与项目西南角一路之隔在建的京西大悦城联合,共同提升激活区域商业价值。商业裙房立面设计是我们改造设计的内容。
北京石景山区远洋·春秋里
TEL:400 - 100 - 1299 转接 1111【售楼中心】
▲改造前商业裙房立面实景
项目改造前立面为竖线条形式,立面材料以英国棕石材以及玻璃幕墙为主,新旧程度为新,整体风格比较传统。
北京石景山区远洋·春秋里
TEL:400 - 100 - 1299 转接 1111【售楼中心】
▲项目改造前立面实景
改造策略 STRATEGY
基于业主的诉求,先期对项目明确了五大改造策略:1.不突破原批复规划指标;2.成本可控;3.较大化继承利用现状;4.立面分区明确,主次分明;5.城市形象重要展示面着重打造。
北京石景山区远洋·春秋里
TEL:400 - 100 - 1299 转接 1111【售楼中心】
改造设计 DESIGN
通过对商业裙房立面现状尺度、人流来向、重要的城市展示界面分析,分层级梳理出了立面改造的重要节点、次要节点。项目的主要展示面在西立面、南立面、北立面局部、东立面局部,剩余立面为次要展示面。遵循成本控制和继承利用原则,我们把本次改造重点放在主要展示面上。

北京石景山区远洋·春秋里
TEL:400 - 100 - 1299 转接 1111【售楼中心】
▲改造设计分析
设计思考 THINKING
针对业主诉求中的提到的要打造网红地标,我们认为引领时尚潮流的元素是必不可少的,立面上的符号元素、新型材料、灯光元素良好应用,都对立面的呈现好效果有着积极影响。
北京石景山区远洋·春秋里
TEL:400 - 100 - 1299 转接 1111【售楼中心】
设计理念 IDEA
灵感来源项目旁的永定河,永定河是市域的较大水系,孕育了一方水土,同时我们秉承传承和创新好玩之心,用现代的流线性曲线设计的创意与既有的城市环境达到自然和谐统一的碰撞融合,最终形成了这座永定河畔的弄潮儿。
北京石景山区远洋·春秋里
TEL:400 - 100 - 1299 转接 1111【售楼中心】
▲设计草图
北京石景山区远洋·春秋里
TEL:400 - 100 - 1299 转接 1111【售楼中心】
▲西立面设计草模
北京石景山区远洋·春秋里
TEL:400 - 100 - 1299 转接 1111【售楼中心】
▲南立面设计草模
立面上线性的曲线如同永定河的水流自然流淌,张弛有度,自然分割出商业立面必要的不同功能性节点,至此整个立面的骨架优质呈现。在虚实关系上,首层近人尺度立面更通透,二三层立面更实。
北京石景山区远洋·春秋里
TEL:400 - 100 - 1299 转接 1111【售楼中心】
▲改造后沿街效果图
在材料装饰上,以波形铝板、风动幕墙、玻璃幕墙为主,波形铝板的起伏变化、风动幕墙的波光粼粼、玻璃幕墙的明镜干净,如同水流的弄潮儿,为流线性的立面锦上添花。
北京石景山区远洋·春秋里
TEL:400 - 100 - 1299 转接 1111【售楼中心】
▲改造后立面材料细节
在材料颜色上,以白色为主,香槟金色辅助收边,整个色彩搭配干净简约时尚。
北京石景山区远洋·春秋里
TEL:400 - 100 - 1299 转接 1111【售楼中心】
▲改造后立面材料颜色
在体量进退关系上,二三层装饰立面在原有的立面基础上整体外挑1米,原立面可以被保留,节省改造成本,同时出挑的体量亦为首层的商业店铺带来类雨棚的好处;首层外边界保留在原立面位置。体量的进退让整个立面更富有层次。
北京石景山区远洋·春秋里
TEL:400 - 100 - 1299 转接 1111【售楼中心】
▲改造后立面进退关系
在方案设计过程中,我们对立面形体和立面材料进行了大量的比选研究,力求做到满意的立面。

北京石景山区远洋·春秋里
TEL:400 - 100 - 1299 转接 1111【售楼中心】
▲设计部分过程稿
主入口 ENTRANCE
主入口位于建筑西侧中部,由两层通高的高透玻璃幕和香槟金拱形门头组成,两侧的幕墙通过香槟金弧形线条再此处汇聚,增强了入口的向心力和昭示性。
北京石景山区远洋·春秋里
TEL:400 - 100 - 1299 转接 1111【售楼中心】
▲改造后主入口实景
门头由下到上出挑逐渐增加,外侧收口线脚向内倾斜,削弱了门头的厚重感。
北京石景山区远洋·春秋里
TEL:400 - 100 - 1299 转接 1111【售楼中心】
▲改造后主入口效果图
北京石景山区远洋·春秋里
TEL:400 - 100 - 1299 转接 1111【售楼中心】
▲改造后主入口门头细节
波形铝板 ALUMINUM PLATE
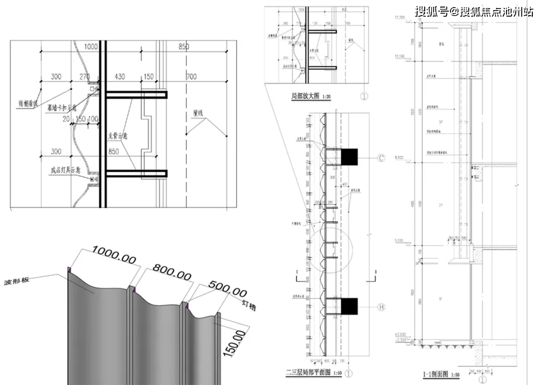
立面二层及以上的主要材料为珍珠白波形铝板,波形铝板采用模数化设计,经过反复优化对比,每块波形铝板最后确定为由1000mm、800mm、500mm宽,波峰150mm的三个不同的波形组成基本模数单元。
北京石景山区远洋·春秋里
TEL:400 - 100 - 1299 转接 1111【售楼中心】
▲波形铝板细节
北京石景山区远洋·春秋里
TEL:400 - 100 - 1299 转接 1111【售楼中心】
▲波形铝板节点示意
波形板在竖向彼此之间交界处预留凹槽,为夜景照明Led线条灯提供安装空间。线条灯自身颜色与波形板一致,保证立面的统一性。LED线条灯可实现动态线条,图案显示和追光效果。
北京石景山区远洋·春秋里
TEL:400 - 100 - 1299 转接 1111【售楼中心】
▲波形铝板之间的LED线条灯细部
北京石景山区远洋·春秋里
TEL:400 - 100 - 1299 转接 1111【售楼中心】
▲改造后夜景亮化实景
北京石景山区远洋·春秋里
TEL:400 - 100 - 1299 转接 1111【售楼中心】
▲改造后夜景亮化效果图
风动幕墙 CURTAIN WALLS
项目主要展示面的三个街角立面需要出彩的效果,我们结合永定河水流的设计理念,在立面上希望实现波光粼粼的效果,经过多种新型材料的反复实验对比,最终选用风动幕墙这种新型材料,给人眼前一亮的视觉体验。风动幕墙有PET、不锈钢、铝板、铜四种常用材料,项目原设计为不锈钢这种相对比较高级有质感的材料,最后因为成本造价问题,在保证立面效果的前提下,改为PET材料。
北京石景山区远洋·春秋里
TEL:400 - 100 - 1299 转接 1111【售楼中心】
▲风动幕墙PET材料实景
风动幕墙会随着太阳光和风环境的变化而变化,当有风吹过时,建筑表面仿佛清风拂过水面,产生波光粼粼的效果。
北京石景山区远洋·春秋里
TEL:400 - 100 - 1299 转接 1111【售楼中心】
▲波光粼粼的风动幕墙
考虑到PET材料的使用年限,风动幕墙为可拆卸设计,其背后为白色铝板幕墙衬底,风动幕墙通过预埋点位安装在白色铝板幕墙之上,其在拆除之后,不会影响其背后的白色铝板完整可视效果。
广告标识 IDENTIFICATION
项目的西南角区域,紧邻杨庄地铁站A口和主干道交叉口,是整个建筑最重要的展示节点,为了营造街角的出彩性,初始方案考虑采用3D显示效果光电玻璃屏,最后由于审批问题的复杂性,此处最终采用了弧形的广告灯箱的形式。
北京石景山区远洋·春秋里
TEL:400 - 100 - 1299 转接 1111【售楼中心】
▲改造后弧形的广告灯箱
北京石景山区远洋·春秋里
TEL:400 - 100 - 1299 转接 1111【售楼中心】
▲广告灯箱节点示意
项目案名LOGO位于主入口左上角醒目位置,采用白色亚克力材料,香槟金型材包边,与立面颜色保持统一,文字通过纤细的预埋件悬挑于立面外侧,轻盈美观。
北京石景山区远洋·春秋里
TEL:400 - 100 - 1299 转接 1111【售楼中心】
▲改造后案名LOGO细部
北京石景山区远洋·春秋里
TEL:400 - 100 - 1299 转接 1111【售楼中心】
▲改造后案名LOGO细部
首层广告标识采用贴墙式,在施工时支撑构件采用预埋形式,隐藏于玻璃胶缝中,方便后期招商后广告标识的更换和移动。
北京石景山区远洋·春秋里
TEL:400 - 100 - 1299 转接 1111【售楼中心】
▲首层广告标识室外效果示意
北京石景山区远洋·春秋里
TEL:400 - 100 - 1299 转接 1111【售楼中心】
▲首层广告标识安装示意
立面百叶 LOUVRE BLADE
考虑到立面百叶进排风的需要,进排风口设置在新立面顶部压顶线脚的底部,通过对细节的考虑和精细化设计,避免了直接在波形板上开洞问题的出现,保证了立面的完整性。
北京石景山区远洋·春秋里
TEL:400 - 100 - 1299 转接 1111【售楼中心】
▲改造后立面百叶进排风口细部
北京石景山区远洋·春秋里
TEL:400 - 100 - 1299 转接 1111【售楼中心】
▲立面百叶现状梳理
北京石景山区远洋·春秋里
TEL:400 - 100 - 1299 转接 1111【售楼中心】
▲立面百叶进排风口节点示意
地铁口 SUBWAY ENTRANCE
立面西南角为地铁杨庄站A口,其与项目现状立面融合在一起,该口是本站人流较大的地铁出入口。
▲地铁口实景
北京石景山区远洋·春秋里
TEL:400 - 100 - 1299 转接 1111【售楼中心】
考虑到项目新立面改造后的完整性,同时也希望给地铁口带来新的活力,我们对该地铁口进行了统一的设计。但最后很遗憾,因为产权归属问题,最后未能实施。
北京石景山区远洋·春秋里
TEL:400 - 100 - 1299 转接 1111【售楼中心】
▲改造后地铁口效果图
成本优化 Optimization
基于成本控制和继承利用,立面改造主要策略是主要展示面进行新设计,次要面保留现状,经过多轮对主要展示面和次要展示面过渡边界的优化,最终为立面改造节省了约3000平米可不改造的面积,极大的优化了成本。
北京石景山区远洋·春秋里
TEL:400 - 100 - 1299 转接 1111【售楼中心】
▲改造后主次展示面过渡边界实景
项目在主要展示面改造实施上,仅对龙骨与主体结构交接处安装产生影响的立面进行局部拆除,其余保留原现状,同样极大的节省了成本。
▲幕墙安装现场实景
北京石景山区远洋·春秋里
TEL:400 - 100 - 1299 转接 1111【售楼中心】
网上售楼中心——欢迎来电咨询〢——匠心钜制恭迎品鉴!
----------- 欢迎来电预约尊享内部折扣!给您一个满意温馨的家!
声明:本文由入驻焦点开放平台的作者撰写,除焦点官方账号外,观点仅代表作者本人,不代表焦点立场。
