北京【梧桐浅山】售楼处电话-地址-开盘-价格-较新详情!
扫描到手机,新闻随时看
扫一扫,用手机看文章
更加方便分享给朋友
北京平谷区【梧桐浅山】
●【售楼处热线】:400-100-1299 转接 0001【官方认证】
●郑重承诺:开发商售楼部直销,绝不收取任何费用,中介勿扰!
●注:本开发商和【本网站】特约合作(最终解释权由开发商所有)

编辑
1
项目基本情况
项目名称:中国铁建梧桐浅山(别名)
企业名称:北京润谷置业有限公司
项目位置:平谷区夏各庄镇
占地面积:83000平方米
容积率:1.4
套数:1223套
销售均价:含全装修费用15000元/平方米(根据具体楼层、朝向在±5%的范围内调整销售价格)
产权年限:共有产权房,70年

编辑
2
交通路线
项目四至: 东至夏各庄西二路,南至规划夏各庄北一路,西至夏贤路,北至夏各庄中环路。

编辑
交通路线:顺平路、平夏路、夏贤路 、东南路
公共交通:平37路,平44路,平63路
3
周边配套
项目配有下沉式商业广场、图书馆、健身房、咖啡馆、菜市场等,可满足日常生活需求。

编辑
商业配套:银河购物中心、华联购物中心
医疗:平谷区医院,平谷区中医院,夏各庄镇卫生院
教育:夏各庄中心幼儿园、北京市平谷区张各庄中学
环境:万亩滨河森林公园
4
户型
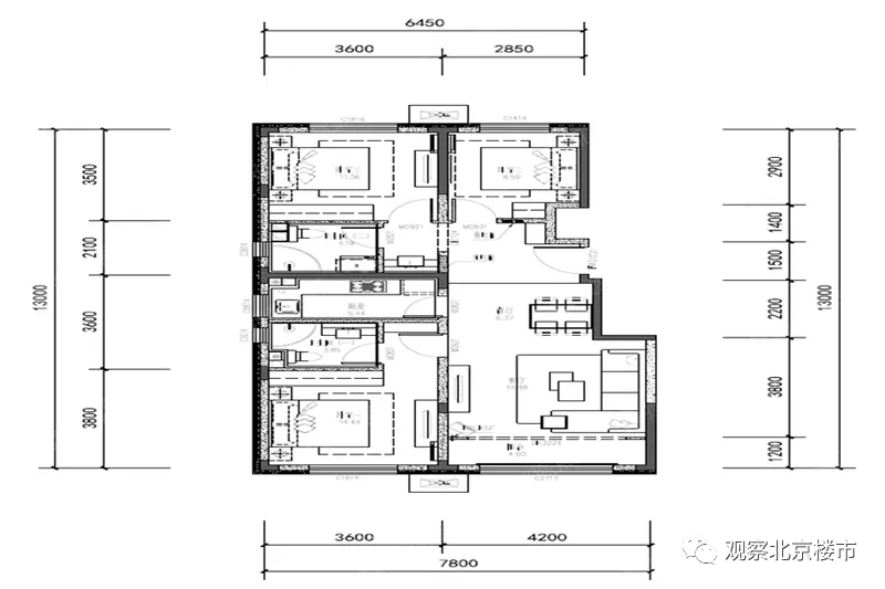
户型面积:套户型主要为建筑面积约89㎡两居室、约89㎡三居室,约110㎡三居室。
89平米两室两厅一卫A户型:

编辑
110平米三室两厅两卫B户型:

编辑
89平米三室两厅一卫C户型:

编辑
声明:本文由入驻焦点开放平台的作者撰写,除焦点官方账号外,观点仅代表作者本人,不代表焦点立场。
